For Sale By Auction | 14:00, 29 January 2026

St Bees Cottage, 52 Butts Street, Annan, Dumfriesshire DG12 5BB

*Guide | £120,000 (plus fees)

  • Bungalow
  • 2 Bedrooms
  • Tenure: Freehold

Call the team on 0141 339 4466 for more information

Auction Date

Thu 29/01/2026

Auction Time

14:00

Auction Venue

Live Stream

Detached bungalow

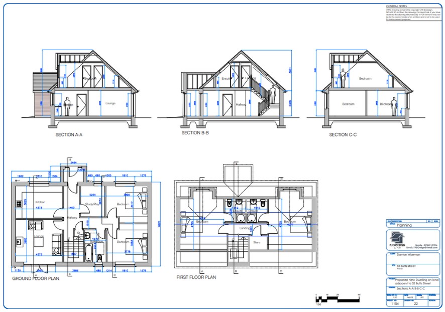
Fantastic opportunity to purchase a detached bungalow on a generous sized plot in the popular town of Annan in south west Scotland. The property is positioned on the corner with a driveway, large workshop, outbuilding and spacious garden. Full planning permission had been approved to extend the existing dwelling into a spacious two bedroom, two reception bungalow with detached annex. Separate planning permission allows for a detached three bedroom house to be built alongside the existing property. This is an exciting development opportunity for a developer or local builder looking for a new project. Full planning applications with architect drawings can be viewed on Dumfries and Galloway council website using references 23/0468/FUL and 23/0900/FUL. Council Tax Band: C. Unsafe properties Unsafe properties are evidently in a condition that poses a serious risk to the health or safety of occupants or visitors, or where the way the home is marketed suggests it is unsuitable for occupation in that condition. There is little point in a condition survey being undertaken on a home that is unfit for occupation in any case and is being advertised as such.

Tenure

Freehold

Area

The town of Annan provides a range of local amenities including schools at both primary and secondary level, Annan Swimming Pool, shops, cafes and supermarkets including Aldi and Tesco Superstore, all within walking distance. There are good transport links nearby with Annan Train Station just half a mile away. The town is also well-served by public transport links with access to the M74/M6 motorways to the North and South.

Local Authority

Dumfries and Galloway Council

Important Notice to Prospective Buyers:

We draw your attention to the Special Conditions of Sale within the Legal Pack, referring to other charges in addition to the purchase price which may become payable. Such costs may include Search Fees, reimbursement of Sellers costs and Legal Fees, and Transfer Fees amongst others.

Additional Fees

Administration Charge - 3.6% inc VAT of the purchase price, subject to a minimum of £3600 inc VAT, payable on exchange of contracts.

Disbursements - Please see the legal pack for any disbursements listed that may become payable by the purchaser on completion.

View Larger Map

Disclaimer: The map preview provided above is for general guidance only and may not accurately reflect the exact location or surrounding buildings. Prospective buyers and interested parties are strongly advised to independently verify the precise location and surroundings before bidding.