For Sale By Auction | 14:00, 08 May 2025 | Lot 26

Stonemasons Arms, 142 Albert Road, Devonport, Plymouth, Devon PL2 1AQ

Sold £129,000

  • Commercial Development
  • Tenure: Freehold

Call the team on 01752 474200 for more information

Auction Date

Thu 08/05/2025

Auction Time

14:00

Auction Venue

Live Stream

Vacant Former Public House

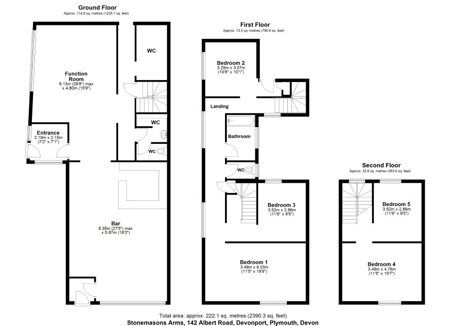
'The Stonemasons Arms' is a derelict public house situated in Stoke, Plymouth. Located on Albert Road, the property is conveniently situated close to local amenities, HMNB Dockyard as well as regular public transport links into Plymouth city centre. The existing building is an end of terrace dwelling with accommodation arranged over three floors.

Tenure

Freehold

AUCTIONEERS NOTE

The site has been subject to the following planning applications: 06/00960/OUT - Outline application to redevelop the site by the erection of a 4 storey building containing 12 flats, with associated car parking area (with siting and access details) - Refused 06/01641/OUT - Redevelopment of site by erection of 11 flats with associated car parking, cycle and bin store – Granted conditionally 08/00816/REM - Redevelopment of former public house to 11 flats with associated car parking, cycle and bin store – Granted conditionally 10/01374/OUT - Renewal of outline application to redevelop the site with the erection of 11 flats with associated car parking, cycle and bin store – Granted conditionally subject to a section 106 agreement Most recently, a pre-application was submitted on Monday 16th September 2024 for re-development to form 10 self-contained flats with associated cycle parking and refuse storage. Further information can be found on the planning portal using Ref: 24/01197/MJR

FULL DETAILS

Photographs, Dimensions, Floor Plans and Area Measurements (when available) are included within our full details online on our website. All published information is to aid identification of the property and is not necessarily to scale.

VIEWINGS

Please telephone Auction House South West on 03456 461361 to request a viewing.

NOTICE TO BIDDER

Please be aware that if your Bid is successful on Auction day the exchange of contracts will happen immediately after the Auction.

Energy Efficiency Rating (EPC)

Current Rating C66

Local Authority

Plymouth City Council

Solicitors

Stamp James Solicitors, Ref: Kevin James, Tel: 01392 576033 DL / 01392 576034

Important Notice to Prospective Buyers:

We draw your attention to the Special Conditions of Sale within the Legal Pack, referring to other charges in addition to the purchase price which may become payable. Such costs may include Search Fees, reimbursement of Sellers costs and Legal Fees, and Transfer Fees amongst others.

Additional Fees

Administration Charge - £1200 inc VAT payable on exchange of contracts.

Disbursements - Please see the legal pack for any disbursements listed that may become payable by the purchaser on completion.

View Larger Map

Disclaimer: The map preview provided above is for general guidance only and may not accurately reflect the exact location or surrounding buildings. Prospective buyers and interested parties are strongly advised to independently verify the precise location and surroundings before bidding.