For Sale By Auction | 14:00, 02 December 2025 | Lot 11

Belmont Barns, Baldu, Truro, Cornwall TR3 6EG

*Guide | £60,000 (plus fees)

  • Plot
  • Tenure: Freehold

Call the team on 01872 484888 for more information

Auction Date

Tue 02/12/2025

Auction Time

14:00

Auction Venue

Live Stream

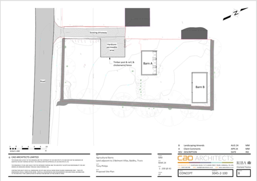
Parcel of Land with Planning Permission.

A freehold parcel of land with planning permission, extending to approx. 1/4 of an acre, the land has direct frontage to the road and is in a rural location close to Truro. There is planning permission for two buildings for livestock purposes.

Tenure

Freehold

AGENTS NOTE

Planning permission was passed for two livestock buildings in 2024 under the planning application number PA24/04513. We have been advised foundations have been laid by the current owners, they would need to be checked to ensure they comply with the planning consent, together with the addition of services which include electricity, water and drainage. The seller has advised the title includes the driveway with the neighbouring property having a right of way to their property and there is potential for residential planning subject to the appropriate planning consents. Retrospective Planning Permission sought for: Installation of Septic Tank and Leach Field (not yet connected). Erection of Tool Shed (erected but not completed). Widening of access gate entrance has been approved. Application number PA25/04516

FULL DETAILS

Photographs, Dimensions, Floor Plans and Area Measurements (when available) are included within our full details online on our website. All published information is to aid identification of the property and is not necessarily to scale.

VIEWINGS

Viewings are available without appointment during all daylight hours, giving due consideration to neighbouring businesses, property and land.

NOTICE TO BIDDER

Please be aware that if your bid is successful on auction day the exchange of contracts will happen immediately after the auction.

Local Authority

Cornwall County Council

Solicitors

Wolferstans Solicitors, Ref: Ebenezer Ola, Tel: DL 01752 292325 / 01752 292318

Important Notice to Prospective Buyers:

We draw your attention to the Special Conditions of Sale within the Legal Pack, referring to other charges in addition to the purchase price which may become payable. Such costs may include Search Fees, reimbursement of Sellers costs and Legal Fees, and Transfer Fees amongst others.

Additional Fees

Buyer's Premium - £480 inc VAT payable on exchange of contracts.

Administration Charge - £1200 inc VAT payable on exchange of contracts.

Disbursements - Please see the legal pack for any disbursements listed that may become payable by the purchaser on completion.

View Larger Map

Disclaimer: The map preview provided above is for general guidance only and may not accurately reflect the exact location or surrounding buildings. Prospective buyers and interested parties are strongly advised to independently verify the precise location and surroundings before bidding.