For Sale By Auction | 14:00, 02 December 2025 | Lot 3

110 Repton Road, Bristol, Bristol BS4 3LZ

*Guide | £185,000 (plus fees)

  • Terraced House
  • 2 Bedrooms
  • Tenure: Freehold

Call the team on 0117 299 9889 for more information

Auction Date

Tue 02/12/2025

Auction Time

14:00

Auction Venue

Live Stream

Mid-terrace Property

A two bedroom mid-terrace house in Brislington, Bristol. The property requires modernisation throughout.

Tenure

Freehold

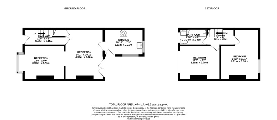
ACCOMMODATION

Entrance Hall Living Room: 13'0" x 8'9" Dining Room: 10'8" x 14'1" Kitchen: 10'8" x 7'2" Landing Bedroom One: 11'0" x 9'1" Bedroom Two: 11'0" x 14'1" Bathroom: 7'8" x 4'6"

VIEWINGS

Regular block viewing sessions will be provided in the lead up to the auction. Please telephone Auction House South West on 03456 461361 to request a viewing.

FULL DETAILS

Photographs, Dimensions, Floor Plans and Area Measurements (when available) are included within the full property details, online, via our website. All published information is to aid identification of the property and is not necessarily to scale.

NOTICE TO BIDDER

Please be aware that if your Bid is successful on Auction day the exchange of contracts will happen immediately after the Auction.

Energy Efficiency Rating (EPC)

Current Rating D62

Local Authority

Bristol City Council

Offered in association with

CJ Hole

Important Notice to Prospective Buyers:

We draw your attention to the Special Conditions of Sale within the Legal Pack, referring to other charges in addition to the purchase price which may become payable. Such costs may include Search Fees, reimbursement of Sellers costs and Legal Fees, and Transfer Fees amongst others.

Additional Fees

Buyer's Premium - £1200 inc VAT payable on exchange of contracts.

Administration Charge - £1200 inc VAT payable on exchange of contracts.

Disbursements - Please see the legal pack for any disbursements listed that may become payable by the purchaser on completion.

View Larger Map

Disclaimer: The map preview provided above is for general guidance only and may not accurately reflect the exact location or surrounding buildings. Prospective buyers and interested parties are strongly advised to independently verify the precise location and surroundings before bidding.