For Sale By Auction | 14:00, 02 December 2025 | Lot 19

Grenville Hotel, 82-84 Grenville Road, Plymouth, Devon PL4 9PZ

*Guide | £380,000 (plus fees)

  • Block of Apartments
  • 3 Bedrooms
  • Tenure: Freehold

Call the team on 01752 474200 for more information

Auction Date

Tue 02/12/2025

Auction Time

14:00

Auction Venue

Live Stream

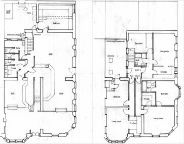
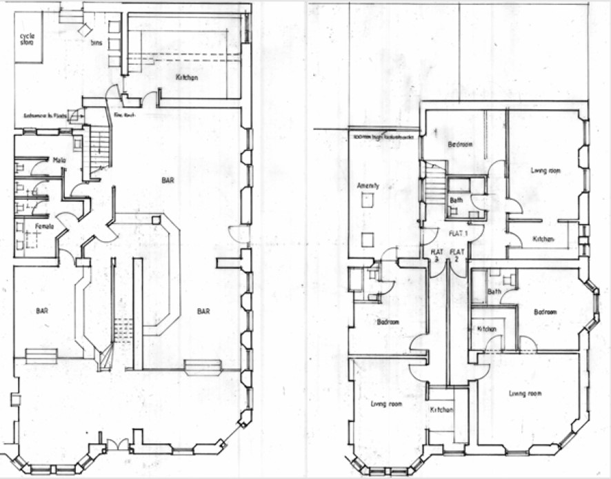
Residential Development/Investment

A substantial end of terrace period property, situated in Prince Rock, Plymouth. Located within walking distance of Plymouth city centre, parkland, good schooling and regular transport links. The property consists of three self contained apartments, all let on ASTs (assured Shorthold Tenancy Agreements) and a vacant commercial premises with granted permission for change of use of the ground floor from public house to 3 apartments. Externally there is an enclosed rear courtyard which has been divided in two. A fantastic opportunity for someone looking for an ongoing investment opportunity with potential for further development.

Tenure

Freehold

AUCTIONEERS NOTE

There are three self contained one bedroom apartments, all let on Assured Shorthold Tenancy Agreements. Further information has been supplied in the legal pack which is available to download free of charge via our website. Planning Permission has been granted for change of use of the ground floor from public house (Sui Generis) to 3 x 1 bed apartments. Further information can be found on the planning website using ref: 24/01145/FUL

FULL DETAILS

Photographs, Dimensions, Floor Plans and Area Measurements (when available) are included within our full details online on our website. All published information is to aid identification of the property and is not necessarily to scale.

VIEWINGS

Please telephone Auction House South West on 03456 461361 to request a viewing.

NOTICE TO BIDDER

Please be aware that if your bid is successful on auction day the exchange of contracts will happen immediately after the auction.

Energy Efficiency Rating (EPC)

Current Rating EPC Rating - Flat 1 - C73, Flat 2 - C73, Flat 3 - C73

Local Authority

Plymouth City Council

Solicitors

Wolferstans Solicitors, Ref: Ebenezer Ola, Tel: DL 01752 292325 / 01752 292318

Offered in association with

Atwell Martin Estate Agents

Important Notice to Prospective Buyers:

We draw your attention to the Special Conditions of Sale within the Legal Pack, referring to other charges in addition to the purchase price which may become payable. Such costs may include Search Fees, reimbursement of Sellers costs and Legal Fees, and Transfer Fees amongst others.

Additional Fees

Buyer's Premium - £1200 inc VAT payable on exchange of contracts.

Administration Charge - £1200 inc VAT payable on exchange of contracts.

Disbursements - Please see the legal pack for any disbursements listed that may become payable by the purchaser on completion.

View Larger Map

Disclaimer: The map preview provided above is for general guidance only and may not accurately reflect the exact location or surrounding buildings. Prospective buyers and interested parties are strongly advised to independently verify the precise location and surroundings before bidding.