Sold Prior | Lot 21

Flat 1 Oliver Court, 5 Spring Garden Lane, Gosport, Hampshire, PO12 1FW

Sold Prior

  • Apartment
  • 2 Bedrooms

Call the team on 01273 201989 for more information

Auction Date

Thu 17/07/2025

Auction Time

2.30pm

Auction Venue

Live Stream

Vacant 2 x Bedroom Ground Floor Flat

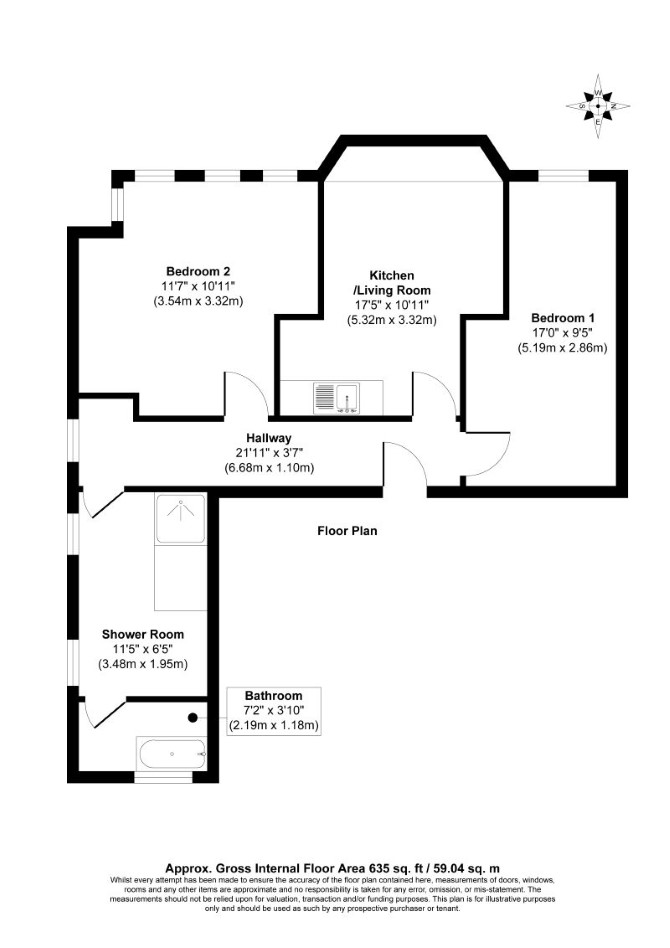
Leasehold ground floor flat within a period conversion. The property comprises of an open plan kitchen/living room, 2 x bedrooms and a showroom. Situation The property is located on the West side of Spring Garden Lane in central Gosport, overlooking St George's playing fields. There are a range of local shops, restaurants and amenities within 0.1 miles of the property. Gosport ferry terminal is 0.6 miles to the East, providing links to Portsmouth, Southsea and Gunwharf Quays. Location Pin (What3Words): valve.sock.drip https://w3w.co/valve.sock.drip Accommodation Kitchen / Living Room - 5.32 x 3.32 Bedroom 1 - 5.19 x 2.86 Bedroom 2 - 3.54 x 3.32 Shower Room - 3.48 x 1.95 Bathroom - 2.19 x 1.18 Total Floor Area - 59 sq.m. (taken from EPC) NB WE DRAW YOUR ATTENTION TO THE SPECIAL CONDITIONS IN THE LEGAL PACK, REFERRING TO BUYERS PREMIUM OF £1,200 (INC VAT) AND OTHER CHARGES IN ADDITION TO THE PURCHASE PRICE. PLEASE ENSURE YOU READ THE SPECIAL CONDITIONS THOROUGHLY Tenure Leasehold - 150 year lease, from 1 January 2007 (approximately 131 years remaining). Ground rent - £250 pa fixed Council Tax - Band B EPC Rating - C

Lot Type

Residential

Important Notice to Prospective Buyers:

We draw your attention to the Special Conditions of Sale within the Legal Pack, referring to other charges in addition to the purchase price which may become payable. Such costs may include Search Fees, reimbursement of Sellers costs and Legal Fees, and Transfer Fees amongst others.

Additional Fees

Administration Charge - Purchasers will be required to pay an Administration fee of 1% (inc VAT) of the sale price, subject to a minimum of £1,750 (inc VAT)

Disbursements - Please see the legal pack for any disbursements listed that may become payable by the purchaser on completion.

View Larger Map

Disclaimer: The map preview provided above is for general guidance only and may not accurately reflect the exact location or surrounding buildings. Prospective buyers and interested parties are strongly advised to independently verify the precise location and surroundings before bidding.