For Sale By Auction | 12:00, 09 December 2025

7 Wicklow Street, Middlesbrough, North Yorkshire TS1 4RG

*Guide | £45,000 - £55,000 (plus fees)

  • Terraced House
  • 2 Bedrooms
  • Tenure: Freehold

Call the team on 01642 931060 for more information

Auction Date

Tue 09/12/2025

Auction Time

12:00

Auction Venue

Live Stream

PERFECT INVESTMENT - TWO BEDROOM TERRACE

Two bedroom property well located for Middlesbrough Town centre. Perfect for investment. The property benefits include gas central heating via combi boiler and double glazing. Internally comprising, Entrance Hall, through lounge dining room and Kitchen, rear lobby and ground floor bathroom. To the first floor there are 2 bedrooms. Externally is a rear yard. Please note this property is in a selective licensing zone - further information can be ound via Middlesbrough Council website We endeavour to make our particulars accurate and reliable, however, they do not constitute or form part of an offer or any contract and none is to be relied upon as statements of representation or fact. The services, systems and appliances listed in this specification have not been tested by us and no guarantee as to their operating ability or efficiency is given. All photographs and measurements have been taken as a guide only and are not precise. We ask all parties to complete full due-diligence on any auction property by reading a full pack prior to bidding. Come auction day (9th December), you must be in a position to legally exchange contracts at the fall of the gavel, a 10% deposit (£5,000 min) is required and completion is set for 28 days later. You must be registered to bid, Please note that previous purchases, interest or registration through the Auction House Brand are not valid for a forthcoming auction and therefore you MUST register your interest with the office on 01642 931060. Please also note that holding an EIgroup account will not give you bidding authorisation, this authorisation can only be granted via the Tees Valley branch once all forms, documentation and completed ID checks have been received at teesvalley@auctionhouse.co.uk. for any further assistance, please do not hesitate to contact us in the office.

Tenure

Freehold

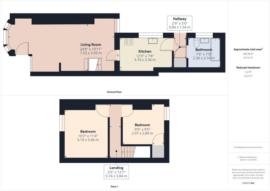
Ground Floor

Living Room - 7.52m x 3.35m Kitchen - 3.74n x 2.36m Hallway Bathroom

First Floor

Bedroom - 3.10m x 3.46m Bedroom - 2.97n x 2.89m

Auctioneers Notes

Property construction – Standard Electricity supply – Mains Water supply – Mains Sewerage – Mains Heating – Gas Broadband - Standard Speed – 8 mbps Mobile signal / coverage – O2/Vodafone- Very Good/Three/EE –Good Parking – Off Street Building Safety – See Legal Pack Restrictions – Yes – See Legal Pack – Selective Licence Area Rights and easements - See Legal Pack Flood risk - Low Coastal erosion – Very Low Planning permission – See Legal Pack – Latest FENSA work – 06/02/2022 Accessibility / adaptions – See Legal Pack Coalfield or mining area - See Legal Pack

Local Authority

Middlesbrough Council

Solicitors

HNW Law, Suite 17, Ref: HNW Law, Tel: 01642 050800

Offered in association with

Clarke Munro

Important Notice to Prospective Buyers:

We draw your attention to the Special Conditions of Sale within the Legal Pack, referring to other charges in addition to the purchase price which may become payable. Such costs may include Search Fees, reimbursement of Sellers costs and Legal Fees, and Transfer Fees amongst others.

Additional Fees

Buyer's Premium - 1.8% inc VAT of the purchase price, subject to a minimum of £1200 inc VAT, payable on exchange of contracts.

Administration Charge - £1800 inc VAT payable on exchange of contracts.

Disbursements - Please see the legal pack for any disbursements listed that may become payable by the purchaser on completion.

View Larger Map

Disclaimer: The map preview provided above is for general guidance only and may not accurately reflect the exact location or surrounding buildings. Prospective buyers and interested parties are strongly advised to independently verify the precise location and surroundings before bidding.