For Sale By Auction | 12:00, 21 May 2025 | Lot 39

Barclays Bank (Ground Floor Premises & Basement), 64 High Street, Pwllheli LL53 5RR

*Guide | £80,000 - £100,000 (plus fees)

  • Commercial Property
  • Tenure: Freehold

Call the team on 0345 646 2350 for more information

Auction Date

Wed 21/05/2025

Auction Time

12:00

Auction Venue

ONLINE

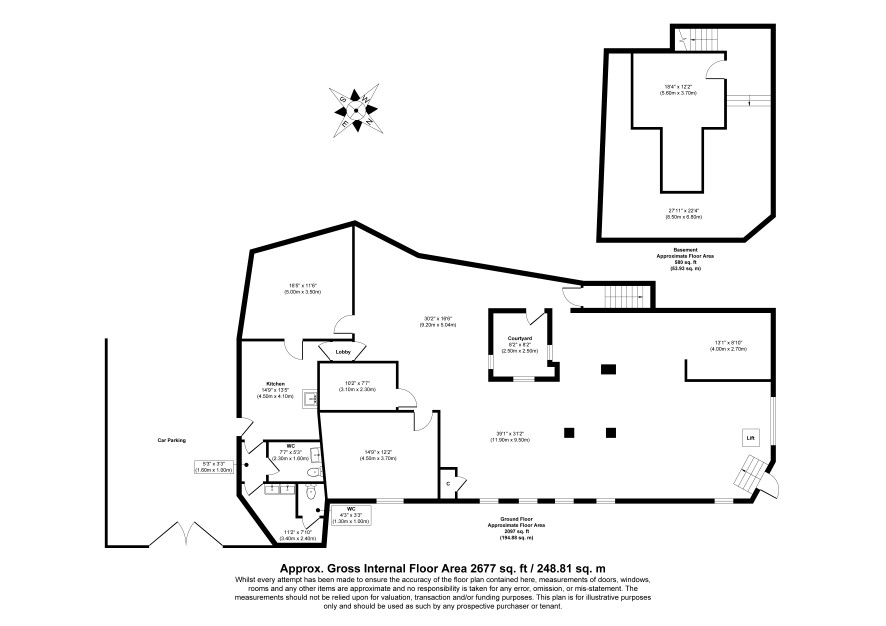
GROUND FLOOR & BASEMENT CAR PARK TO REAR FORMER BANK UNIT PROMINENT HIGH STREET LOCATION Title Number: CYM300651 Rateable Value: £18,000 Per Annum Council Reference: 1401632670000 Guide Price: £80,000 - £100,000 (Plus Fees) An opportunity to acquire a approx. 2,901.58 SqFt former bank arranged on the ground floor and basement with the benefit of the rear car park. Please note the first floor office has been sold off on a 999 year long lease at a peppercorn rent. Boasting a prominent position on the popular High Street in the centre of Pwllheli, this generous floorspace lends itself to multiple uses and possible redevelopment. With mentions of multiple office units, a community hub or conversion to residential usage, all you need is a creative mind to establish how you can best exit your investment on this sizeable unit. (All statements are passive and are subject to necessary consents/planning permissions). REGISTER FOR LEGAL PACK AND BIDDING ON OUR WEBSITE. WWW. AUCTIONHOUSE.CO.UK PLEASE NOTE No appliances have been tested by Auction House. Any measurements are approximate. We recommend any would be bidders conduct their own due diligence in good time prior to the auction taking place. IMPORTANT INFORMATION Buying at auction is a contractual commitment, you are legally obliged to buy the lot on the terms of the sale memorandum at the price you bid. If you are the successful bidder, you are required to pay the deposit and auction fees immediately. As agent for the seller, we treat any failure to satisfy your obligations as your repudiation of the contract and the seller may then have a claim against you for breach of contract. You must not bid unless you wish to be bound by the common conditions of auction. Any purchasers choosing to buy without viewing in person are doing so at their own risk and acknowledge that the auctioneer will not be held responsible for any issues that may arise due to them being unintentionally missed from the video or sales particulars.

Tenure

Freehold

Local Authority

Gwynedd County Council

Solicitors

DTM Legal, Ref: DTM Legal, Tel: 01244 354810

Important Notice to Prospective Buyers:

We draw your attention to the Special Conditions of Sale within the Legal Pack, referring to other charges in addition to the purchase price which may become payable. Such costs may include Search Fees, reimbursement of Sellers costs and Legal Fees, and Transfer Fees amongst others.

Additional Fees

Buyer's Premium - £1800 inc VAT payable on exchange of contracts.

Administration Charge - £1200 inc VAT payable on exchange of contracts.

Disbursements - Please see the legal pack for any disbursements listed that may become payable by the purchaser on completion.

View Larger Map

Disclaimer: The map preview provided above is for general guidance only and may not accurately reflect the exact location or surrounding buildings. Prospective buyers and interested parties are strongly advised to independently verify the precise location and surroundings before bidding.