For Sale By Auction | 12:00, 26 March 2025 | Lot 33

32a Northgate & 8 The Straits, Baildon, Shipley, West Yorkshire BD17 6JX

Sold

  • Terraced House
  • 3 Bedrooms

Call the team on 0113 393 3482 for more information

Auction Date

Wed 26/03/2025

Auction Time

12:00

Auction Venue

Live Stream

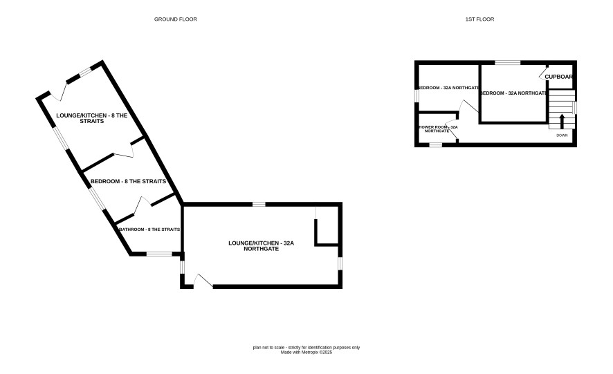
This pair of residential dwellings comprises a vacant two bedroom house (32A Northgate) with adjoining tenanted one bedroom bungalow (8 The Straits). The bungalow is occupied by a longstanding tenant generating £5,100 per annum while the vacant house would benefit from a little TLC prior to being re-let. Externally the properties enjoy a gated courtyard and we understand that the two parking spaces marked "private" are for their use. The property is located in the heart of the ever popular town of Baildon with a whole host of shops and amenities just a stones throw away. Interested parties will be pleased to hear that Baildon Mill, located directly behind the property is currently being developed into luxury apartments.

Additional Information

Council Tax

Band A.

EPC

32a Northgate - rating E. 8 The Straits - rating E.

Tenure

Freehold.

Charges & Payments

In addition to the deposit Administration Charge: 0.9% inc VAT of the purchase price subject to a minimum of £1,500 inc VAT.

Important Notice to Prospective Buyers:

We draw your attention to the Special Conditions of Sale within the Legal Pack, referring to other charges in addition to the purchase price which may become payable. Such costs may include Search Fees, reimbursement of Sellers costs and Legal Fees, and Transfer Fees amongst others.

Additional Fees

Administration Charge - See above

Disbursements - Please see the legal pack for any disbursements listed that may become payable by the purchaser on completion.

View Larger Map

Disclaimer: The map preview provided above is for general guidance only and may not accurately reflect the exact location or surrounding buildings. Prospective buyers and interested parties are strongly advised to independently verify the precise location and surroundings before bidding.