For Sale By Auction | 12:00, 26 March 2025 | Lot 47

28 Haigh Wood Road, Leeds, West Yorkshire LS16 6PB

Sold

  • Semi-Detached House
  • 3 Bedrooms

Call the team on 0113 393 3482 for more information

Auction Date

Wed 26/03/2025

Auction Time

12:00

Auction Venue

Live Stream

This three bedroom semi-detached property has been a much loved family home for many years but is now in need of complete refurbishment and modernisation. Externally the property has a driveway to the front providing off street parking with a garage and large tiered garden to the rear. Given its location just a two minute walk (according to Google) from Horsforth Train Station and the many shops and amenities on Station Road, this is surely a property not to be ignored. Interested parties should be aware that some cracking was noticed on our inspection although we believe this relates to a historic drainage issue that was resolved in 2023.

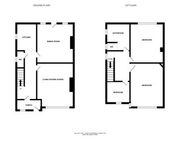
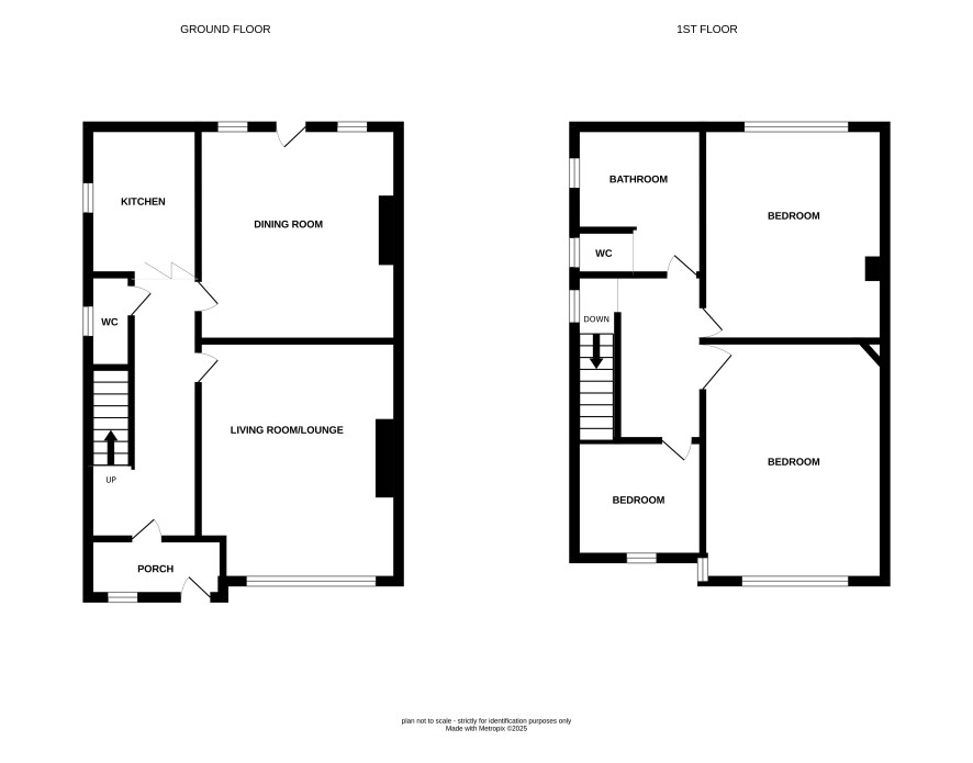
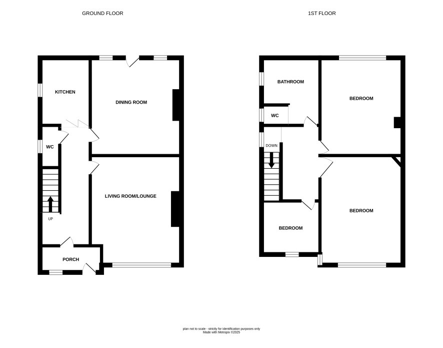
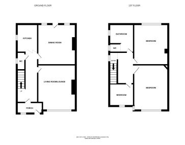
Ground Floor

Living room, dining room, kitchen and wc.

First Floor

Three bedrooms and bathroom.

Externally

Front and rear gardens.

EPC

F

ADDITIONAL INFORMATION

Council Tax

Band C.

Tenure

Freehold.

Charges & Payments

In addition to the deposit Administration Charge: 0.9% inc VAT of the purchase price subject to a minimum of £1,500 inc VAT. Searches £300 inc VAT

Important Notice to Prospective Buyers:

We draw your attention to the Special Conditions of Sale within the Legal Pack, referring to other charges in addition to the purchase price which may become payable. Such costs may include Search Fees, reimbursement of Sellers costs and Legal Fees, and Transfer Fees amongst others.

Additional Fees

Administration Charge - See above

Disbursements - Please see the legal pack for any disbursements listed that may become payable by the purchaser on completion.

View Larger Map

Disclaimer: The map preview provided above is for general guidance only and may not accurately reflect the exact location or surrounding buildings. Prospective buyers and interested parties are strongly advised to independently verify the precise location and surroundings before bidding.