For Sale By Auction | 12:00, 26 March 2025 | Lot 7

23 Foldings Parade, Scholes, Cleckheaton, West Yorkshire BD19 6DE

Sold

  • Semi-Detached House
  • 2 Bedrooms

Call the team on 0113 393 3482 for more information

Auction Date

Wed 26/03/2025

Auction Time

12:00

Auction Venue

Live Stream

This two bedroom semi-detached property would benefit from some refurbishment but is sure to appeal to any investors seeking a strong potential return. Externally the property has a driveway and garden to the front with a large garden to the rear. The property is located in the village of Scholes just five miles to the South of Bradford city centre and with excellent links to the local motorway network. Interested parties should be aware the property is of non-standard construction and are advised to do their own research in this regard prior to bidding.

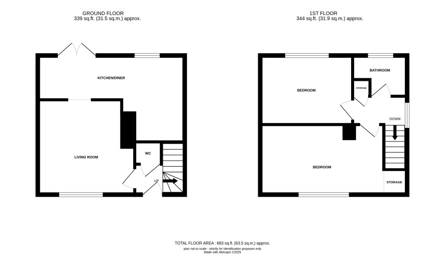
Ground Floor

Kitchen/diner, living room and wc.

First Floor

Two bedrooms, bathroom and wc.

Externally

Gardens to front and rear.

Additional Information

Council Tax

Kirklees - Band A

EPC Rating

D

Tenure

Freehold

Charges and Payments

In addition to the deposit Administration Charge: 0.9% inc VAT of the purchase price subject to a minimum of £1,500 inc VAT.

Important Notice to Prospective Buyers:

We draw your attention to the Special Conditions of Sale within the Legal Pack, referring to other charges in addition to the purchase price which may become payable. Such costs may include Search Fees, reimbursement of Sellers costs and Legal Fees, and Transfer Fees amongst others.

Additional Fees

Administration Charge - See above

Disbursements - Please see the legal pack for any disbursements listed that may become payable by the purchaser on completion.

View Larger Map

Disclaimer: The map preview provided above is for general guidance only and may not accurately reflect the exact location or surrounding buildings. Prospective buyers and interested parties are strongly advised to independently verify the precise location and surroundings before bidding.