Sold Prior | Lot 25a

20 Sixth Avenue, Liversedge , West Yorkshire WF15 8LQ

Sold Prior

  • Semi-Detached House
  • 3 Bedrooms

Call the team on 0113 393 3482 for more information

Auction Date

Wed 26/03/2025

Auction Time

12:00

Auction Venue

Live Stream

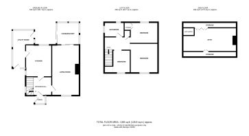
This is a three bedroom semi detached house requiring a refurbishment, and is ideal for a buy to let landlord or someone wanting to add value to a property. The house has three bedrooms with an additional attic room for extra usable space, plus two conservatory areas, of which one is used as a utility room. There is a driveway and a rear garden. It is sold with vacant possession. It's located in a residential area of Liversedge, a town in the Kirklees district with schools, shops and amenities. The town centre is just one mile from the house and is an easy drive or bus ride. The property is conveniently located for the M62 and M606.

Ground Floor

Living room, kitchen, utility room and conservatory

First Floor

Three bedrooms and a bathroom

Second Floor

Attic room

Externally

Driveway and gardens to the front and rear

Additional Information

Council Tax

Kirklees - Band A

EPC Rating

G

Tenure

Freehold

Charges and Payments

In addition to the deposit Administration Charge: £1,200 inc VAT. Searches £300 inc VAT

Important Notice to Prospective Buyers:

We draw your attention to the Special Conditions of Sale within the Legal Pack, referring to other charges in addition to the purchase price which may become payable. Such costs may include Search Fees, reimbursement of Sellers costs and Legal Fees, and Transfer Fees amongst others.

Additional Fees

Administration Charge - See above

Disbursements - Please see the legal pack for any disbursements listed that may become payable by the purchaser on completion.

View Larger Map

Disclaimer: The map preview provided above is for general guidance only and may not accurately reflect the exact location or surrounding buildings. Prospective buyers and interested parties are strongly advised to independently verify the precise location and surroundings before bidding.