For Sale By Auction | 12:00, 14 May 2025 | Lot 4

9 Tyersal Garth, ], Bradford , West Yorkshire BD4 8HB

Sold

  • Semi-Detached House
  • 3 Bedrooms

Call the team on 0113 393 3482 for more information

Auction Date

Wed 14/05/2025

Auction Time

12:00

Auction Venue

Live Stream

This three bedroom semi detached property with driveway, garage and garden is offered for sale via traditional auction. The property is in good internal condition and would make a great family home or addition to a rental portfolio. Situated in this popular location, close to Pudsey Train Station and local amenities, also offering a short commute to Leeds City Centre and Bradford City Centre. Buyers should be aware the property does have both internal and external cracking, we have been provided with a structural survey from November 2023 which states 'We believe the cracking in these areas is predominantly caused by thermal expansion' & 'we do not believe progressive ground movement is the cause of the cracking'. Buyers are advised to do their own research in this regard.

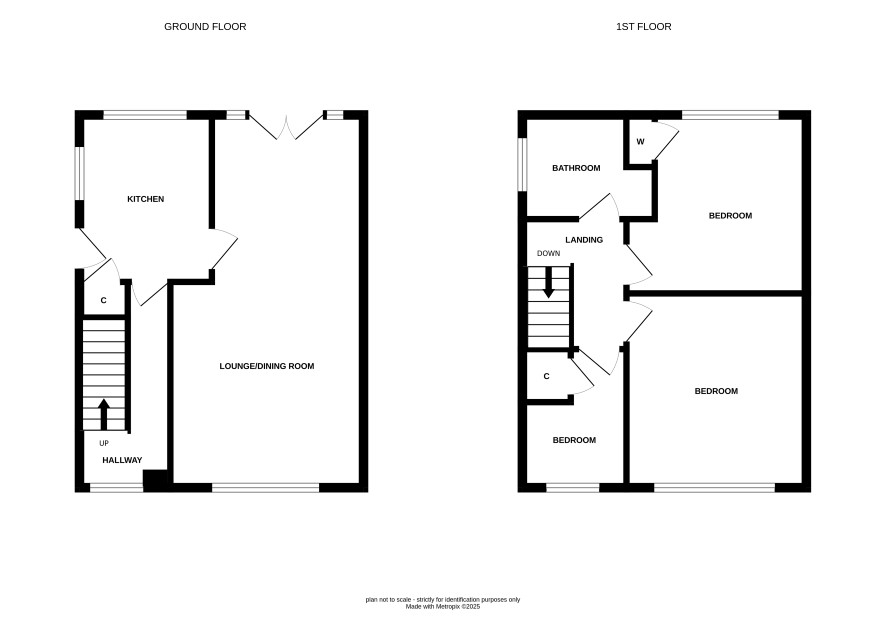
Ground Floor

Lounge/dining room and kitchen.

First Floor

Three bedrooms and bathroom.

Externally

Driveway, gardens to front and rear and garage.

ADDITIONAL INFORMATION

Council Tax

Band C.

EPC Rating

C

Tenure

Freehold.

Charges & Payments

In addition to the deposit Administration Charge: 1.2% inc VAT of the purchase price subject to a minimum of £1,500 inc VAT. Searches £300 inc VAT

Important Notice to Prospective Buyers:

We draw your attention to the Special Conditions of Sale within the Legal Pack, referring to other charges in addition to the purchase price which may become payable. Such costs may include Search Fees, reimbursement of Sellers costs and Legal Fees, and Transfer Fees amongst others.

Additional Fees

Administration Charge - See above

Disbursements - Please see the legal pack for any disbursements listed that may become payable by the purchaser on completion.

View Larger Map

Disclaimer: The map preview provided above is for general guidance only and may not accurately reflect the exact location or surrounding buildings. Prospective buyers and interested parties are strongly advised to independently verify the precise location and surroundings before bidding.