Postponed | Lot 54

Flat 20, 108 Thornton Road, Bradford, West Yorkshire BD1 2DX

Postponed

  • Duplex
  • 3 Bedrooms

Call the team on 0113 393 3482 for more information

Auction Date

Wed 09/07/2025

Auction Time

12:00

Auction Venue

Live Stream

This spacious three bedroom duplex apartment is offered for sale via traditional auction. The property is currently tenanted, generating rental income of £15,000 per annum which reflects a gross yield of 18.9% based on the guide price. This property would be a great addition to a rental portfolio. The Old Mill is situated on Thornton Road BD1, directly opposite Arkwright Hall only a stone`s throw away from the main Bradford University and conveniently set in the heart of the City Centre with easily accessible transport links (public buses and trains).The development is a former textile mill, which has been renovated to a modern residential apartment building. Leasehold information: Lease length - 125 years from 1st January 2011 Ground Rent – £390 per annum. Service Charge – Information requested from the seller; awaiting confirmation. Please note the seller is recovering all selling fees from the buyer; the cost of which will be reflected within the legal pack.

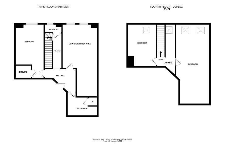
ACCOMMODATION

Third Floor

Duplex - Ground Floor

Lounge/kitchen, bedroom with ensuite, bathroom and storage room.

Duplex - First Floor

Two bedrooms.

ADDITIONAL INFORMATION

Council Tax

Band C.

EPC

Rating C.

Tenure

Leasehold.

Disclaimer

Any information in relation to the length of lease, service charge, ground rent and council tax has been confirmed by our sellers. We advise buyers to make their own enquiries through their solicitors to verify that the information provided is accurate and not been subject to any change.

Charges & Payments

In addition to the deposit Administration Charge: 1.2% inc VAT of the purchase price subject to a minimum of £1,500 inc VAT. Searches £300 inc VAT

Important Notice to Prospective Buyers:

We draw your attention to the Special Conditions of Sale within the Legal Pack, referring to other charges in addition to the purchase price which may become payable. Such costs may include Search Fees, reimbursement of Sellers costs and Legal Fees, and Transfer Fees amongst others.

Additional Fees

Administration Charge - See above

Disbursements - Please see the legal pack for any disbursements listed that may become payable by the purchaser on completion.

View Larger Map

Disclaimer: The map preview provided above is for general guidance only and may not accurately reflect the exact location or surrounding buildings. Prospective buyers and interested parties are strongly advised to independently verify the precise location and surroundings before bidding.