For Sale By Auction | 12:00, 10 December 2025

4 Burley Wood Court, 462 Kirkstall Road, Leeds, West Yorkshire LS4 2QD

*Guide | £85,000 (plus fees)

  • Apartment
  • 2 Bedrooms

Call the team on 0113 393 3482 for more information

Auction Date

Wed 10/12/2025

Auction Time

12:00

Auction Venue

Live Stream

This two bedroom duplex apartment with allocated parking space is offered for sale via traditional auction. The property is currently tenanted generating a gross rental income of £10,200 per annum making this a great addition to a rental portfolio. The vendor has advised that the block is mainly occupied by young professionals with this flat being continuously let out for 20 years with no downtime or difficulty in finding new tenants. Burley Wood Court is located just off Kirkstall Road. Local buses depart 0.1 miles away and Morrisons supermarket is less than 0.5 miles away. Leasehold information: Length of lease - 99 years from 1st January 2004 Ground rent - £400 Per Annum Service Charge - £2,046.92 Per Annum. Please note that the previous rent increase from £825 PCM to £850 PCM was a verbal agreement between the landlord and tenant and there is no documentary evidence to support this increase.

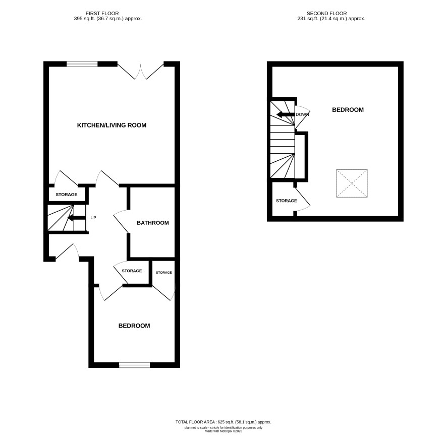
First Floor

Living room/kitchen, bedroom and bathroom

Externally

Allocated parking and communal gardens

Additional Information

Council Tax

Leeds City Council - Band A

EPC Rating

D

Tenure

Leasehold

Disclaimer

Any information in relation to the length of lease, service charge, ground rent and council tax has been confirmed by our sellers. We advise buyers to make their own enquiries through their solicitors to verify that the information provided is accurate and not been subject to any change.

Charges and Payments

In addition to the deposit Administration Charge: 1.2% inc VAT of the purchase price subject to a minimum of £1,500 inc VAT. Searches £300 inc VAT.

Important Notice to Prospective Buyers:

We draw your attention to the Special Conditions of Sale within the Legal Pack, referring to other charges in addition to the purchase price which may become payable. Such costs may include Search Fees, reimbursement of Sellers costs and Legal Fees, and Transfer Fees amongst others.

Additional Fees

Administration Charge - See above

Disbursements - Please see the legal pack for any disbursements listed that may become payable by the purchaser on completion.

View Larger Map

Disclaimer: The map preview provided above is for general guidance only and may not accurately reflect the exact location or surrounding buildings. Prospective buyers and interested parties are strongly advised to independently verify the precise location and surroundings before bidding.