For Sale By Auction | 12:00, 10 December 2025

30 Princess Avenue, South Elmsall, Pontefract, West Yorkshire WF9 2QU

*Guide | £95,000 (plus fees)

  • Semi-Detached House
  • 3 Bedrooms

Call the team on 0113 393 3482 for more information

Auction Date

Wed 10/12/2025

Auction Time

12:00

Auction Venue

Live Stream

This three bedroom semi detached property with off street parking and gardens to front and rear is offered for sale via traditional auction. The property does require internal renovation, but would make a great project or addition to a rental portfolio. The property is located in Wakefield, specifically, South Elmsall. South Elmsall is a small residential community with local amenities to include shops, schools, parks and access to public transport. Please note: A 14 day completion applies to this lot.

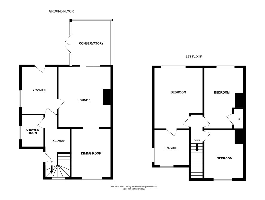
Ground Floor

Lounge, dining room, kitchen, conservatory and shower room.

First Floor

Three bedrooms and en-suite.

Externally

Gardens to front and rear and off street parking.

Additional Information

Council Tax

Band A.

EPC

Rating D.

Tenure

Freehold.

Charges & Payments

In addition to the deposit Administration Charge: 1.2% inc VAT of the purchase price subject to a minimum of £1,500 inc VAT. Buyer’s Premium: 1,500 inc VAT.

Important Notice to Prospective Buyers:

We draw your attention to the Special Conditions of Sale within the Legal Pack, referring to other charges in addition to the purchase price which may become payable. Such costs may include Search Fees, reimbursement of Sellers costs and Legal Fees, and Transfer Fees amongst others.

Additional Fees

Administration Charge - See above

Disbursements - Please see the legal pack for any disbursements listed that may become payable by the purchaser on completion.

View Larger Map

Disclaimer: The map preview provided above is for general guidance only and may not accurately reflect the exact location or surrounding buildings. Prospective buyers and interested parties are strongly advised to independently verify the precise location and surroundings before bidding.