For Sale By Auction | 12:00, 10 December 2025

131 Northfield Road, Sheffield, West Yorkshire S10 1QP

*Guide | £200,000 (plus fees)

  • Terraced House
  • 5 Bedrooms

Call the team on 0113 393 3482 for more information

Auction Date

Wed 10/12/2025

Auction Time

12:00

Auction Venue

Live Stream

This five bedroom through terrace property with rear garden is offered for sale via traditional auction. The property does require internal renovation, however would make a great project or addition to a rental portfolio. The property is located close to Crookes shopping centre where a range of shops, cafes, restaurants and pubs can be found along with the 52 bus route which provides good access to Sheffield City Centre.

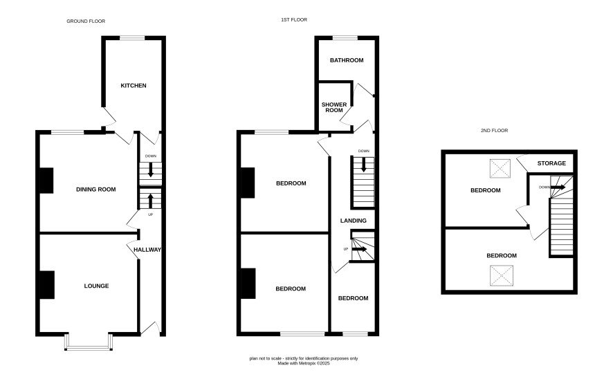
Lower Ground Floor

Cellar

Ground Floor

Lounge, dining room and kitchen

First Floor

Three bedrooms, bathroom and shower room

Second Floor

Two bedrooms

External

Rear garden

Additional Information

Council Tax

Sheffield - Band B

EPC Rating

E

Tenure

Freehold

Charges and Payments

In addition to the deposit Administration Charge: 1.2% inc VAT of the purchase price subject to a minimum of £1,500 inc VAT. Buyer’s Premium: 1.3% inc VAT of the purchase price.

Important Notice to Prospective Buyers:

We draw your attention to the Special Conditions of Sale within the Legal Pack, referring to other charges in addition to the purchase price which may become payable. Such costs may include Search Fees, reimbursement of Sellers costs and Legal Fees, and Transfer Fees amongst others.

Additional Fees

Administration Charge - See above

Disbursements - Please see the legal pack for any disbursements listed that may become payable by the purchaser on completion.

View Larger Map

Disclaimer: The map preview provided above is for general guidance only and may not accurately reflect the exact location or surrounding buildings. Prospective buyers and interested parties are strongly advised to independently verify the precise location and surroundings before bidding.