For Sale By Auction | 18:30, 05 February 2026 | Lot 18

14 Abbey Green, Nuneaton, Warwickshire CV11 5DR

*Guide | £150,000 (plus fees)

  • Commercial Property
  • 3 Bedrooms

Call the team on 024 7652 7789 for more information

Auction Date

Thu 05/02/2026

Auction Time

18:30

Auction Venue

Village Hotel, Dolomite Avenue, Coventry, CV4 9GZ

3 storey vacant mixed use property in the heart of Abbey Green, formerly a convenience store. Retail unit plus 3 bedroom flat above with independent access. Requiring some improvements, an ideal investment opportunity.

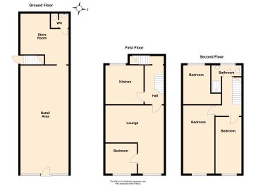
ACCOMMODATION

GROUND FLOOR Retail unit Store room Staff facilities Access to flat via retail Access to flat via side entry FIRST FLOOR Kitchen: 12 ft 5 in x 11 ft 5 in Lounge: 17 ft 8 in x 12 ft 6 in Dining area: 9 ft 9 in x 7 ft 9 in Bedroom 4/ Study: 9 ft 8 in x 12 ft 1 in SECOND FLOOR Bedroom 1: 8 ft 9 in x 8 ft 1 in Bedroom 2: 12 ft 2 in x 9 ft 1 in Bedroom 3: 11 ft 7 in x 8 ft 7 in Shower room:

OUTSIDE

Side corridor leading to flat access plus rear courtyard.

EPC RATING

Commercial: To be confirmed. Residential: To be confirmed.

COUNCIL TAX BAND - A

SERVICES AND HEATING

Mains gas, electricity, water and sewage are supplied to the property. (No tests have been carried out and we are therefore unable to confirm connections.)

TENURE

Freehold with vacant possession.

ADDITIONAL COSTS

Administration Fee: £1,440 (£1,200 plus VAT) Buyers Premium: £1,800 (£1,500 plus VAT) Please see the legal pack for any further costs.

Important Notice to Prospective Buyers:

We draw your attention to the Special Conditions of Sale within the Legal Pack, referring to other charges in addition to the purchase price which may become payable. Such costs may include Search Fees, reimbursement of Sellers costs and Legal Fees, and Transfer Fees amongst others.

Additional Fees

Administration Charge - these fees are included in the above sales particulars.

Disbursements - Please see the legal pack for any disbursements listed that may become payable by the purchaser on completion.

View Larger Map

Disclaimer: The map preview provided above is for general guidance only and may not accurately reflect the exact location or surrounding buildings. Prospective buyers and interested parties are strongly advised to independently verify the precise location and surroundings before bidding.