For Sale By Auction | 12:00, 03 April 2025 | Lot 20

42 - 48 Lowther Park, Kendal, Cumbria LA9 6RS

Sold £330,000

  • Block of Apartments
  • 8 Bedrooms
  • Tenure: See Legal Pack

Call the team on 01228 510 552 for more information

Auction Date

Thu 03/04/2025

Auction Time

12:00

Auction Venue

The Halston Hotel, 20-34 Warwick Road • CA1 1AB

Viewing Times:

Fri 14 Mar

12:30-13:00

Fri 21 Mar

12:30-13:00

Tue 25 Mar

12:30-13:00

Wed 2 Apr

12:30-13:00

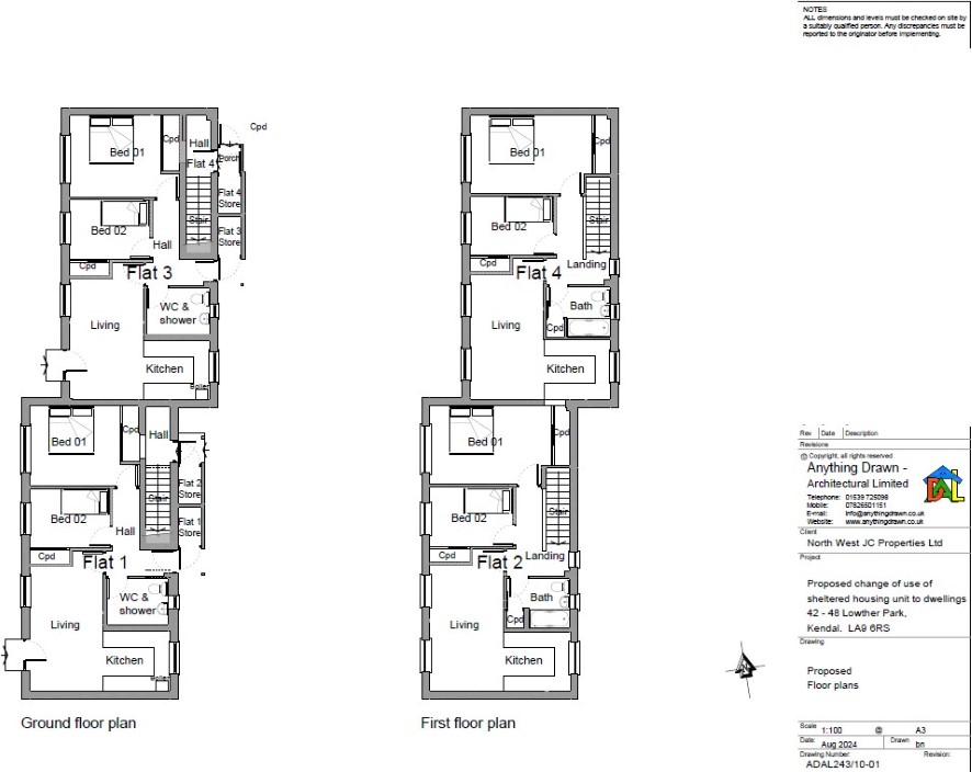
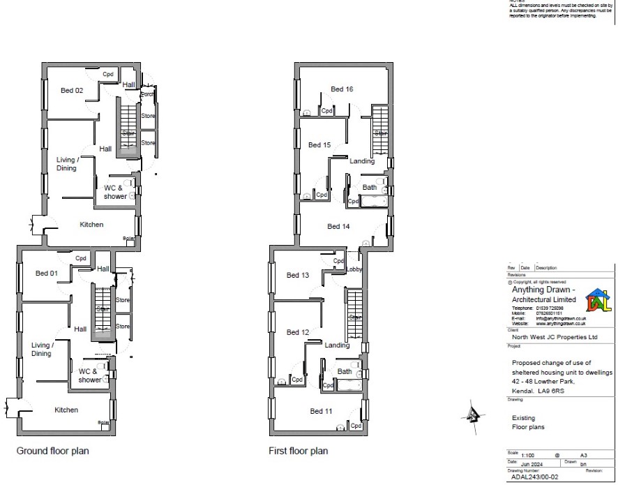
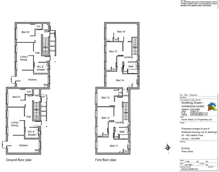
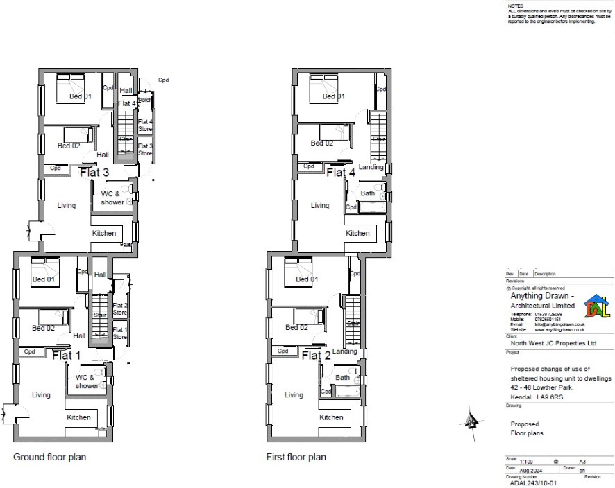
Residential development property

Great development opportunity situated in a cul-de-sac within the market town of Kendal within easy reach of the railway station at Oxenholme , the Lake District and Yorkshire Dales National Parks and the M6 motorway at junction 37. The property was last used as sheltered housing and has planning permission for change of use to create 4 self-contained two bedroomed flats.

Tenure

See Legal Pack

What3words location //////types.dirt.museum

Planning consent

Westmorland and Furness council granted planning permission, reference 2024/1618/FPA, on 7th February 2025 for change of use to 4 two bedroomed flats.

Outside

Please see the title plan for the site boundaries.

Energy Efficiency Rating (EPC)

Current Rating C

Services

Interested parties are invited to make their own enquiries to the relevant authorities as to the availability of the services.

Local Authority

Westmorland and Furness Council

Solicitors

Arnold Greenwood Solicitors, Ref: Danielle McNearny, Tel: 01539751645

Important Notice to Prospective Buyers:

We draw your attention to the Special Conditions of Sale within the Legal Pack, referring to other charges in addition to the purchase price which may become payable. Such costs may include Search Fees, reimbursement of Sellers costs and Legal Fees, and Transfer Fees amongst others.

Additional Fees

Administration Charge - £1200 inc VAT payable on exchange of contracts.

Disbursements - Please see the legal pack for any disbursements listed that may become payable by the purchaser on completion.

View Larger Map

Disclaimer: The map preview provided above is for general guidance only and may not accurately reflect the exact location or surrounding buildings. Prospective buyers and interested parties are strongly advised to independently verify the precise location and surroundings before bidding.