For Sale By Auction | 12:00, 23 October 2025 | Lot 5

45 Main Street, Parton, Whitehaven, Cumbria CA28 6NY

Sold £33,000

  • End of Terrace House
  • 2 Bedrooms
  • Tenure: See Legal Pack

Call the team on 01228 510 552 for more information

Auction Date

Thu 23/10/2025

Auction Time

12:00

Auction Venue

The Halston Hotel, 20-34 Warwick Road • CA1 1AB

Viewing Times:

Sat 4 Oct

10:00-10:30

Sat 11 Oct

10:00-10:30

Sat 18 Oct

10:00-10:30

End terrace house for modernisation in coastal village

A freehold, end of terrace (of 3) house in need of modernisation situated in this popular coastal village just north of Whitehaven. A good investment property with lots of potential, some work has been done but it needs completing. It comprises:- porch, 23' 6 sitting room, dining area, kitchen, two bedrooms and bathroom upstairs, attic room and steps up to elevated, overgrown garden - see the title plan.

Tenure

See Legal Pack

What3words location ///stockpile.headsets.salsa

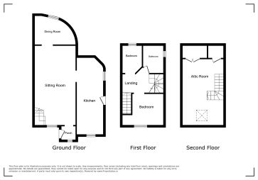
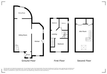
Ground Floor

Porch Front Sitting Room 23'6 x 12' Dining Area 9'9 x 8'6 ave Kitchen 20' x 5'6 max Rear Room

First Floor

Bedroom 10' x 9'3m+ recess Bathroom 8'9 x 6' Bedroom 8'6 x 5'9 max

Second Floor

Attic Room 19'3 x 11'3

Energy Efficiency Rating (EPC)

Current Rating D

Services

Interested parties are invited to make their own enquiries to the relevant authorities as to the availability of the services.

Local Authority

Cumberland Council

Solicitors

Burnetts, 3c Lakeland Business Park, Ref: Kathryn Hill, Tel: 01900 510366

Important Notice to Prospective Buyers:

We draw your attention to the Special Conditions of Sale within the Legal Pack, referring to other charges in addition to the purchase price which may become payable. Such costs may include Search Fees, reimbursement of Sellers costs and Legal Fees, and Transfer Fees amongst others.

Additional Fees

Administration Charge - 1.2% inc VAT of the purchase price, subject to a minimum of £1500 inc VAT, payable on exchange of contracts.

Disbursements - Please see the legal pack for any disbursements listed that may become payable by the purchaser on completion.

View Larger Map

Disclaimer: The map preview provided above is for general guidance only and may not accurately reflect the exact location or surrounding buildings. Prospective buyers and interested parties are strongly advised to independently verify the precise location and surroundings before bidding.