For Sale By Auction | 12:00, 10 December 2025 | Lot 32

Flat 1, 2 and 3, Jubilee Apartments, Kendal, Cumbria LA9 4LR

*Guide | £395,000 (plus fees)

  • Flat
  • 5 Bedrooms
  • Tenure: See Legal Pack

Call the team on 01228 510 552 for more information

Auction Date

Wed 10/12/2025

Auction Time

12:00

Auction Venue

The Halston Hotel, 20-34 Warwick Road • CA1 1AB

Viewing Times:

Fri 28 Nov

14:30-15:00

Fri 5 Dec

15:15-15:45

Tue 9 Dec

15:15-15:45

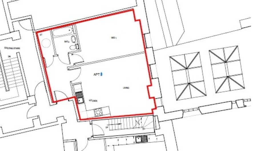
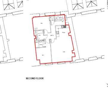
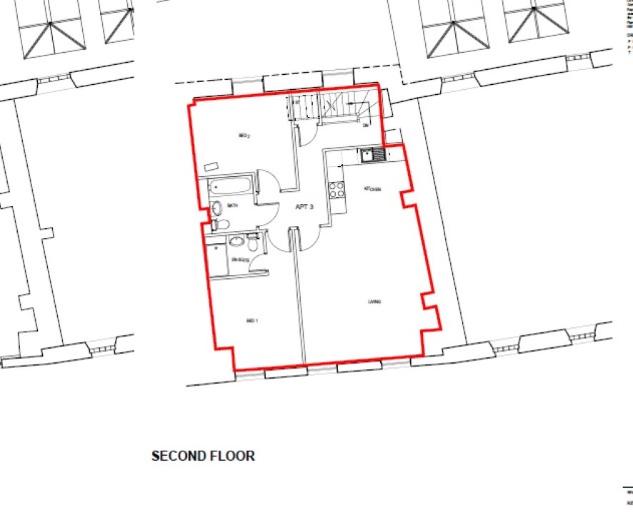
Modern Town centre apartments

Three new 'never been occupied' apartments (2 x 1 bedroom and 1 x 2 bedroom) located on the upper floors of the Westmorland shopping centre, all with modern fitted kitchens and bathrooms ready to occupy and each with an allocated parking space. These are high end modern properties and will suit the investor for occupation by professional tenants. Low management costs (see the legal pack for details).

Tenure

See Legal Pack

Apartment 1

Open plan lounge/dining/kitchen Bathroom Bedroom

Apartment 2

Open plan lounge/dining/kitchen Bathroom Bedroom 1 Bedroom 2

Apartment 3 Open plan lounge/dining/kitchen Bathroom Bedroom1 Bedroom 2 En suite

Energy Efficiency Rating (EPC)

Current Rating D

Services

Interested parties are invited to make their own enquiries to the relevant authorities as to the availability of the services.

Local Authority

Westmorland and Furness Council

Solicitors

Hanover law, Ref: Mark Balmforth, Tel: 0161 5102900

Important Notice to Prospective Buyers:

We draw your attention to the Special Conditions of Sale within the Legal Pack, referring to other charges in addition to the purchase price which may become payable. Such costs may include Search Fees, reimbursement of Sellers costs and Legal Fees, and Transfer Fees amongst others.

Additional Fees

Administration Charge - 1.2% inc VAT of the purchase price, subject to a minimum of £1500 inc VAT, payable on exchange of contracts.

Disbursements - Please see the legal pack for any disbursements listed that may become payable by the purchaser on completion.

View Larger Map

Disclaimer: The map preview provided above is for general guidance only and may not accurately reflect the exact location or surrounding buildings. Prospective buyers and interested parties are strongly advised to independently verify the precise location and surroundings before bidding.