For Sale By Auction | 12:00, 09 April 2026

Barn House, Gleaston, Ulverston, Cumbria LA12 0QA

*Guide | £140,000 (plus fees)

  • Barn Conversion
  • 3 Bedrooms
  • Tenure: See Legal Pack

Call the team on 01228 510 552 for more information

Auction Date

Thu 09/04/2026

Auction Time

12:00

Auction Venue

The Halston Hotel, 20-34 Warwick Road • CA1 1AB

Three Bedroom Barn Conversion

Barn conversion, situated in the rural village of Gleaston. Property compromises of large lounge, kitchen with access to a garage. Upstairs are three double bedrooms and a family bathroom.

Tenure

See Legal Pack

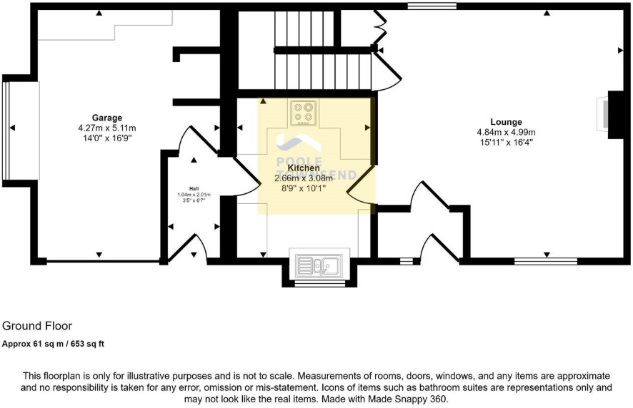
Ground Floor

Lounge 4.99m x 4.84m Kitchen 3.08m x 2.66 Hallway 2.01m x 1.04m Garage 5.11 x 4.27

First Floor

Bedroom 5.34m x 2.76m Bedroom 3.74m x 2.59m Bedroom 3.41m x 2.61m Bathroom 3.00m x 2.42m

Outside

Patio area Outbuilding

Viewings

To view, please call Poole Townsend on 01229 588111

Energy Efficiency Rating (EPC)

Current Rating G

Services

Interested parties are invited to make their own enquiries to the relevant authorities as to the availability of the services.

Local Authority

Westmorland and Furness Council

Solicitors

Livingstons Solicitors, 9 Benson Street, Ref: Livingstons Solicitors, Tel: 01229 585555

Offered in association with

Poole Townsend

Important Notice to Prospective Buyers:

We draw your attention to the Special Conditions of Sale within the Legal Pack, referring to other charges in addition to the purchase price which may become payable. Such costs may include Search Fees, reimbursement of Sellers costs and Legal Fees, and Transfer Fees amongst others.

Additional Fees

Administration Charge - 1.2% inc VAT of the purchase price, subject to a minimum of £1500 inc VAT, payable on exchange of contracts.

Disbursements - Please see the legal pack for any disbursements listed that may become payable by the purchaser on completion.

View Larger Map

Disclaimer: The map preview provided above is for general guidance only and may not accurately reflect the exact location or surrounding buildings. Prospective buyers and interested parties are strongly advised to independently verify the precise location and surroundings before bidding.