Withdrawn | Lot 91

43 Main Street, North Kyme, Lincoln, Lincolnshire LN4 4DG

Withdrawn

  • Detached House
  • Tenure: Freehold

Call the team on 01733 889833 for more information

Auction Date

Wed 12/02/2025

Auction Time

11:00

Auction Venue

Livestream Auction

A detached period cottage in the centre of the village in need of renovation, with planning permission to extend, demolish and rebuild the detached outbuilding

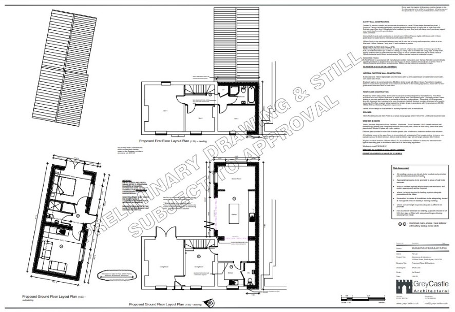
This three bed detached cottage is in need of renovation with planning permission (22/1622/HOUS) to extend and create a detached cottage and convert a detached barn to the side. The proposed accommodation in the house would be a lounge, dining room, utility, W.C. kitchen and sun room on the ground floor with three bedrooms, en-suite and family bathroom on the first floor. The detached barn to the side would comprise a lounge/kitchen, bedroom and a shower room. North Kyme is located between Spalding and Sleaford. The village has a village hall and parish church. Heckington provides shops and a rail link into Grantham.

Tenure

Freehold

Ground Floor (proposed accommodation)

Lounge, dining room, kitchen, sun room and a w.c.

First Floor (proposed accommodation)

Three bedrooms, one with en-suite and a family bathroom.

Outside

Parking and a garden

Council Tax Band

B

Energy Efficiency Rating (EPC)

Current Rating G

Services

Interested parties are requested to make their own enquiries to the relevant authorities as to the availability of services.

Local Authority

North Kesteven District Council

Solicitors

22 Law, Ref: Claire Stanton, Tel: 0191 4270770

Important Notice to Prospective Buyers:

We draw your attention to the Special Conditions of Sale within the Legal Pack, referring to other charges in addition to the purchase price which may become payable. Such costs may include Search Fees, reimbursement of Sellers costs and Legal Fees, and Transfer Fees amongst others.

Additional Fees

Buyer's Premium - £1200 inc VAT payable on exchange of contracts.

Administration Charge - £1200 inc VAT payable on exchange of contracts.

Disbursements - Please see the legal pack for any disbursements listed that may become payable by the purchaser on completion.

View Larger Map

Disclaimer: The map preview provided above is for general guidance only and may not accurately reflect the exact location or surrounding buildings. Prospective buyers and interested parties are strongly advised to independently verify the precise location and surroundings before bidding.