Postponed | Lot 87

Woodlands, Main Road, Narborough, King's Lynn, Norfolk PE32 1TE

Postponed

  • Detached House
  • 6 Bedrooms
  • Tenure: Freehold

Call the team on 01603 505 100 for more information

Auction Date

Wed 12/02/2025

Auction Time

11:00

Auction Venue

Livestream Auction

Substantial six bedroom detached rectory next to the church on large two acre plot

Formerly The Rectory this six bedroom detached rectory extends to around 260 sq/m standing in a generous plot of around two acres stms. It occupies a wonderful position set well back from the road down a sweeping drive screened by mature trees and next to All Saints Narborough church. The large plot adjoins other housing and may provide some development hope value. It benefits from double glazing and oil central heating and requires a program of modernisation to realise its full potential. The property is located around five miles west of Swaffham. A rare opportunity to acquire a wonderful family home with land.

Tenure

Freehold

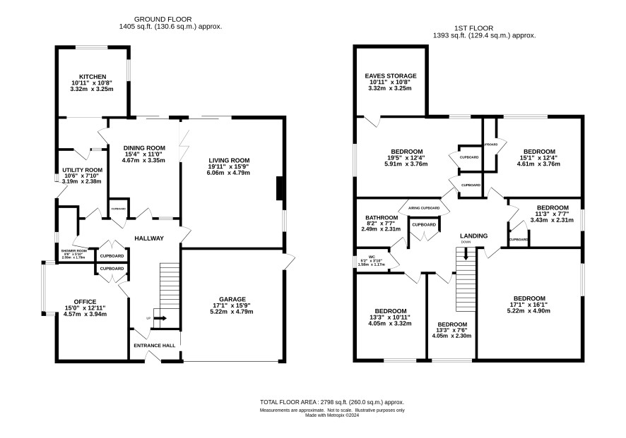
Ground floor

Entrance hall, office, inner hallway, shower room, utility room, dining room, kitchen, living room, integral garage

First floor

Landing, six bedrooms, store room, bathroom, wc

Outside

Mature two acre garden, out building, ample off road parking, garage

Viewings

Viewings are currently being arranged - the next are Monday 13th January - please call to arrange the next available slot on the appropriate viewing day

Energy Efficiency Rating (EPC)

Current Rating F

Services

Interested parties are requested to make their own enquiries to the relevant authorities as to the availability of services.

Local Authority

Breckland Council

Solicitors

Birketts (Norwich), Ref: Stuart Jones, Tel: 01603 756501

Important Notice to Prospective Buyers:

We draw your attention to the Special Conditions of Sale within the Legal Pack, referring to other charges in addition to the purchase price which may become payable. Such costs may include Search Fees, reimbursement of Sellers costs and Legal Fees, and Transfer Fees amongst others.

Additional Fees

Buyer's Premium - £900 inc VAT payable on exchange of contracts.

Administration Charge - 0.3% inc VAT of the purchase price, subject to a minimum of £1200 inc VAT, payable on exchange of contracts.

Disbursements - Please see the legal pack for any disbursements listed that may become payable by the purchaser on completion.

View Larger Map

Disclaimer: The map preview provided above is for general guidance only and may not accurately reflect the exact location or surrounding buildings. Prospective buyers and interested parties are strongly advised to independently verify the precise location and surroundings before bidding.