For Sale By Auction | 11:00, 12 February 2025 | Lot 31

64 The Street, Garboldisham, Diss, Norfolk IP22 2QN

Sold £165,000

  • Semi-Detached House
  • Tenure: Freehold

Call the team on 01603 505 100 for more information

Auction Date

Wed 12/02/2025

Auction Time

11:00

Auction Venue

Livestream Auction

Semi-detached character property in need of restoration situated in the centre of Garboldisham

This period semi-detached cottage is situated in the centre of the village which lies between Diss and Thetford. Offering three bedrooms and unusually for a period cottage, an upstairs bathroom, the cottage retains several original features including a wealth of exposed timbers and a large inglenook fireplace to name but a few. It would now benefit from a full restoration to make a family home. The property also offers a generous rear garden and brick and tile outbuildings and has the added benefit of a driveway providing parking for two or three vehicles.

Tenure

Freehold

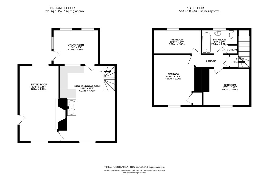
Ground Floor

Lounge, kitchen/dining room and utility space

First Floor

Three bedrooms off the landing and bathroom

Outside

Gated pathway to one side of property leads to good sized garden with brick outbuilding. There is also a parking area for up to 3 vehicles on the other side of the property.

Council Tax Band

B

Viewings

Viewings are being arranged by appointment only and the next are on Tuesday 28 January Please contact the Norwich Office to confirm your appointment time

Energy Efficiency Rating (EPC)

Current Rating E

Services

Interested parties are requested to make their own enquiries to the relevant authorities as to the availability of services.

Local Authority

Breckland Council

Solicitors

Hayward Moon (Diss), Ref: Annabel Leech, Tel: 01379 646044

Important Notice to Prospective Buyers:

We draw your attention to the Special Conditions of Sale within the Legal Pack, referring to other charges in addition to the purchase price which may become payable. Such costs may include Search Fees, reimbursement of Sellers costs and Legal Fees, and Transfer Fees amongst others.

Additional Fees

Buyer's Premium - £960 inc VAT payable on exchange of contracts.

Administration Charge - 0.3% inc VAT of the purchase price, subject to a minimum of £1200 inc VAT, payable on exchange of contracts.

Disbursements - Please see the legal pack for any disbursements listed that may become payable by the purchaser on completion.

View Larger Map

Disclaimer: The map preview provided above is for general guidance only and may not accurately reflect the exact location or surrounding buildings. Prospective buyers and interested parties are strongly advised to independently verify the precise location and surroundings before bidding.