For Sale By Auction | 11:00, 12 February 2025 | Lot 117

138 Earlham Green Lane, Norwich, Norfolk NR5 8RB

Sold After

  • Semi-Detached House
  • 3 Bedrooms
  • Tenure: Freehold

Call the team on 01603 505 100 for more information

Auction Date

Wed 12/02/2025

Auction Time

11:00

Auction Venue

Livestream Auction

1930's three bedroom semi-detached house in need of modernisation and situated close to University of East Anglia

This 1930's semi detached house is situated conveniently for Norwich City Centre, the University of East Anglia and Hospital. In need of some modernisation, this generous family home would make an ideal project for owner occupier or someone looking for an investment. The property has three bedrooms and two receptions rooms, with garage, plus off road parking and a generous sized rear garden.

Tenure

Freehold

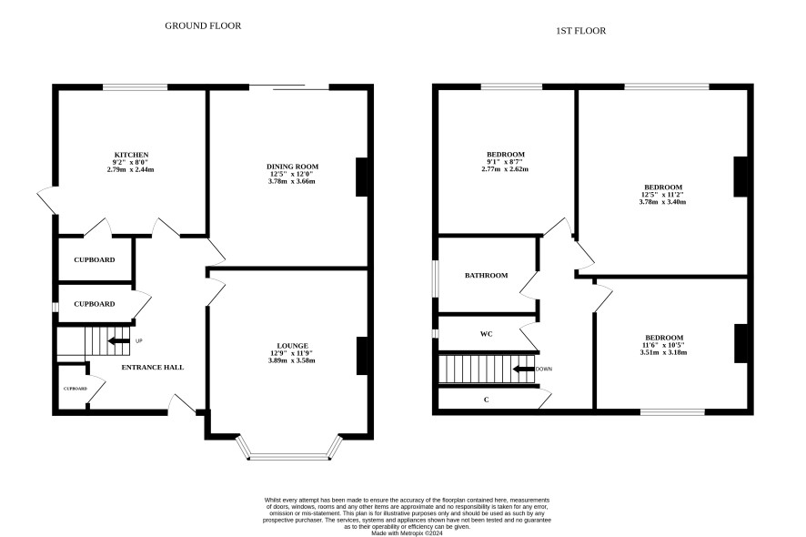
Ground floor

Entrance hall, sitting room, dining room and kitchen

First floor

Landing, three bedrooms, bathroom, separate W.C.

Exterior

Front and rear gardens of good proportions which need maintenance. Off road parking and garage.

Council Tax Band

C

Viewings

Viewings are being arranged and the next is on Tuesday 4 February To book an appointment please call the Norwich office.

Energy Efficiency Rating (EPC)

Current Rating D

Services

Interested parties are requested to make their own enquiries to the relevant authorities as to the availability of services.

Local Authority

Norwich City Council

Solicitors

Mills and Reeve (Cambridge), Ref: Lindsey Merritt-Dunn

Important Notice to Prospective Buyers:

We draw your attention to the Special Conditions of Sale within the Legal Pack, referring to other charges in addition to the purchase price which may become payable. Such costs may include Search Fees, reimbursement of Sellers costs and Legal Fees, and Transfer Fees amongst others.

Additional Fees

Buyer's Premium - £960 inc VAT payable on exchange of contracts.

Administration Charge - 0.3% inc VAT of the purchase price, subject to a minimum of £1200 inc VAT, payable on exchange of contracts.

Disbursements - Please see the legal pack for any disbursements listed that may become payable by the purchaser on completion.

View Larger Map

Disclaimer: The map preview provided above is for general guidance only and may not accurately reflect the exact location or surrounding buildings. Prospective buyers and interested parties are strongly advised to independently verify the precise location and surroundings before bidding.