For Sale By Auction | 11:00, 12 February 2025 | Lot 44

10 Mustow Street, Bury St. Edmunds, Suffolk IP33 1XU

Sold £195,000

  • Terraced House
  • 3 Bedrooms
  • Tenure: Freehold

Call the team on 01473 558 888 for more information

Auction Date

Wed 12/02/2025

Auction Time

11:00

Auction Venue

Livestream Auction

Three bedroom terraced property in need of some cosmetic work throughout, located close to the town centre

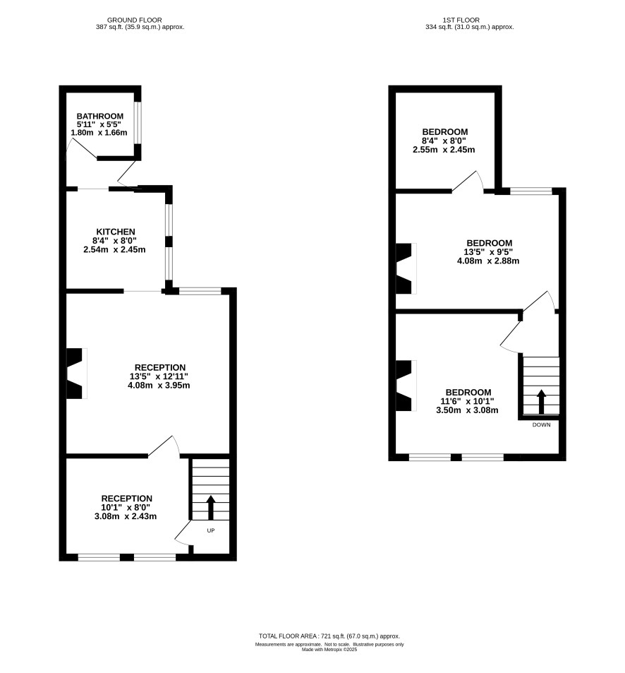
This Victorian three-bedroom property features an entrance porch that opens directly into the dining room. Adjacent is the spacious lounge, following into the kitchen provides ample storage with both low- and eye-level units. Downstairs also features the bathroom with three-piece suite and includes a shower over the bath. Upstairs, the property offers three bedrooms. Two are generously sized doubles, each featuring a fireplace, with one benefiting from built-in wardrobes. The third bedroom, although a single, is spacious and accessible through the primary bedroom, making it versatile as a dressing room, study, nursery, or even a potential en-suite conversion. The property also offers a private courtyard and beyond this, a rear garden, primarily laid to lawn, with a mix of bark flower beds and a patio area complete with a summer house and pergola seating. The property has benefitted from a new combi-boiler in recent years as well as a new fuse box and updated electricals / wiring in 2021. (EICR)

Tenure

Freehold

Note

The neighbouring property has pedestrian access through the garden for bins. Limited damp proofing required to certain external walls downstairs.

Council Tax Band

B

Energy Efficiency Rating (EPC)

Current Rating D

Services

Interested parties are requested to make their own enquiries to the relevant authorities as to the availability of services.

Local Authority

West Suffolk Council

Solicitors

Atkins Dellow, Ref: Georgina Jones, Tel: 01284 731 928

Important Notice to Prospective Buyers:

We draw your attention to the Special Conditions of Sale within the Legal Pack, referring to other charges in addition to the purchase price which may become payable. Such costs may include Search Fees, reimbursement of Sellers costs and Legal Fees, and Transfer Fees amongst others.

Additional Fees

Buyer's Premium - £1140 inc VAT payable on exchange of contracts.

Administration Charge - 0.3% inc VAT of the purchase price, subject to a minimum of £1200 inc VAT, payable on exchange of contracts.

Disbursements - Please see the legal pack for any disbursements listed that may become payable by the purchaser on completion.

View Larger Map

Disclaimer: The map preview provided above is for general guidance only and may not accurately reflect the exact location or surrounding buildings. Prospective buyers and interested parties are strongly advised to independently verify the precise location and surroundings before bidding.