Postponed | Lot 56

Honeywell Cottage, Honeycombe Road, Salhouse, Norwich, Norfolk NR13 6JP

Postponed

  • Detached House
  • Tenure: Freehold

Call the team on 01603 505 100 for more information

Auction Date

Wed 12/02/2025

Auction Time

11:00

Auction Venue

Livestream Auction

Two bedroom detached character cottage situated in an idyllic Broadland setting.

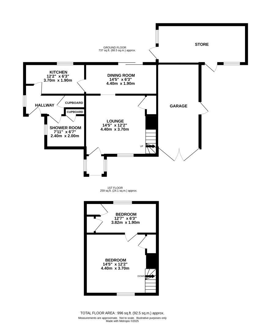
This two bedroom detached cottage is surrounded by open fields and is situated in the picturesque village of Salhouse. The property offers two bedrooms, separate lounge and dining room, kitchen and ground floor bathroom. Ample off road parking, with garage and store room. Good size picturesque front gardens and paved courtyard to the rear. The cottage would be ideal for owner occupation or as a holiday home being located near to Salhouse Broad and just 20 minutes (6.5 miles) from Norwich City centre via the A127 and only 2 miles from Wroxham.

Tenure

Freehold

Ground Floor

Porch, lounge, dining room, kitchen, shower room

First Floor

Two bedrooms

Outside

Garage, store room, good size front garden, courtyard to the rear

Council Tax Band

C

Viewings

Viewings are being arranged and the next is on Monday 24 February. Please call the Norwich office to book an appointment.

Energy Efficiency Rating (EPC)

Current Rating E

Services

Interested parties are requested to make their own enquiries to the relevant authorities as to the availability of services.

Local Authority

Broadland District Council

Solicitors

Capron and Helliwell (Wroxham), Ref: Amanda Nudd, Tel: 01603 783818

Offered in association with

Stobart and Hurrell

Important Notice to Prospective Buyers:

We draw your attention to the Special Conditions of Sale within the Legal Pack, referring to other charges in addition to the purchase price which may become payable. Such costs may include Search Fees, reimbursement of Sellers costs and Legal Fees, and Transfer Fees amongst others.

Additional Fees

Buyer's Premium - £1200 inc VAT payable on exchange of contracts.

Administration Charge - 0.3% inc VAT of the purchase price, subject to a minimum of £1200 inc VAT, payable on exchange of contracts.

Disbursements - Please see the legal pack for any disbursements listed that may become payable by the purchaser on completion.

View Larger Map

Disclaimer: The map preview provided above is for general guidance only and may not accurately reflect the exact location or surrounding buildings. Prospective buyers and interested parties are strongly advised to independently verify the precise location and surroundings before bidding.