For Sale By Auction | 11:00, 26 March 2025 | Lot 39

Flat 1, 101 Wellesley Road, Clacton-On-Sea, Essex CO15 3PT

Sold £65,000

  • Ground Flat
  • Tenure: Leasehold. 123 years from 2006

Call the team on 01473 558 888 for more information

Auction Date

Wed 26/03/2025

Auction Time

11:00

Auction Venue

Livestream Auction

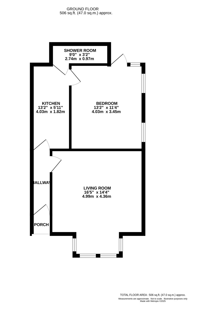
A ground floor flat requiring refurbishment

Close to Clacton town centre is this ground floor flat requiring full refurbishment. The property offers 1 bedroom accommodation with a good size bay fronted living room and presents an excellent opportunity for an investor to add to a rental portfolio.

Tenure

Leasehold. 123 years from 2006

Viewing

Open Viewings have been scheduled as follows: Fri 28th February - 10.00am to 10.30am Tues 11th March - 1.00pm - 1.30pm BOOKING AN APPOINTMENT IS ESSENTIAL Please call 01473 558888 to confirm your attendance

Council Tax Band

A

Energy Efficiency Rating (EPC)

Current Rating F

Services

Interested parties are requested to make their own enquiries to the relevant authorities as to the availability of services.

Local Authority

Tendring District Council

Solicitors

TLT Conveyancing, TLT LLP, Ref: TLT Conveyancing, Tel: 0330 1654201

Important Notice to Prospective Buyers:

We draw your attention to the Special Conditions of Sale within the Legal Pack, referring to other charges in addition to the purchase price which may become payable. Such costs may include Search Fees, reimbursement of Sellers costs and Legal Fees, and Transfer Fees amongst others.

Additional Fees

Buyer's Premium - £1560 inc VAT payable on exchange of contracts.

Administration Charge - £1200 inc VAT payable on exchange of contracts.

Disbursements - Please see the legal pack for any disbursements listed that may become payable by the purchaser on completion.

View Larger Map

Disclaimer: The map preview provided above is for general guidance only and may not accurately reflect the exact location or surrounding buildings. Prospective buyers and interested parties are strongly advised to independently verify the precise location and surroundings before bidding.