For Sale By Auction | 11:00, 26 March 2025 | Lot 108

134 Beccles Road, Bradwell, Great Yarmouth, Norfolk NR31 8PR

Sold £128,500

  • End of Terrace House
  • Tenure: Freehold

Call the team on 01603 505 100 for more information

Auction Date

Wed 26/03/2025

Auction Time

11:00

Auction Venue

Livestream Auction

A freshly updated end terrace cottage ideal for investment

This excellently presented end terrace house benefits from off road parking, gas central heating and full sealed unit double glazing. The property also has a modern kitchen, bathroom and a large open plan through lounge/dining room. The property is conveniently located close to a wide range of local shops, community facilities and is less than a mile from the beach and Gorleston High Street. Internal inspection is highly recommended.

Tenure

Freehold

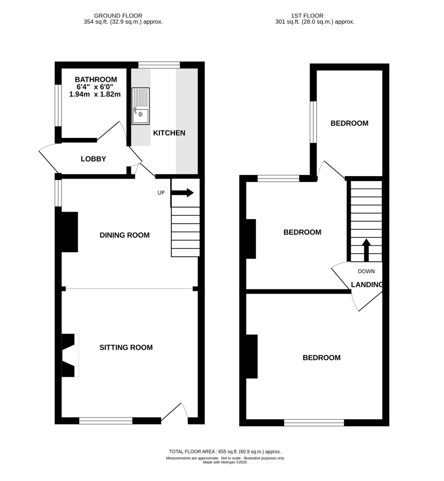
Ground Floor

Lounge/dining room, kitchen, side hall, bathroom

First Floor

Three bedrooms (third through second)

Outside

Side garden with off road parking space, timber garden shed/store. Fully fenced rear garden with decking and rear courtyard.

Council Tax Band

B

Viewings

Viewings are being arranged by appointment only in conjunction with the owner. The next are on Friday 14 and Thursday 20 March Please call the Norwich office to book the next available slot.

Energy Efficiency Rating (EPC)

Current Rating D

Services

Interested parties are requested to make their own enquiries to the relevant authorities as to the availability of services.

Local Authority

Great Yarmouth Borough Council

Solicitors

Lucas and Wyllys (Gorleston), Ref: Amy Church, Tel: 01493 663124

Important Notice to Prospective Buyers:

We draw your attention to the Special Conditions of Sale within the Legal Pack, referring to other charges in addition to the purchase price which may become payable. Such costs may include Search Fees, reimbursement of Sellers costs and Legal Fees, and Transfer Fees amongst others.

Additional Fees

Buyer's Premium - £720 inc VAT payable on exchange of contracts.

Administration Charge - £1200 inc VAT payable on exchange of contracts.

Disbursements - Please see the legal pack for any disbursements listed that may become payable by the purchaser on completion.

View Larger Map

Disclaimer: The map preview provided above is for general guidance only and may not accurately reflect the exact location or surrounding buildings. Prospective buyers and interested parties are strongly advised to independently verify the precise location and surroundings before bidding.