Sold Prior | Lot 24

10 and 10A St. Nicholas Court, Vicarage Street, North Walsham, Norfolk NR28 9BY

Sold Prior

  • Mixed Use
  • Tenure: Freehold

Call the team on 01603 505 100 for more information

Auction Date

Wed 26/03/2025

Auction Time

11:00

Auction Venue

Livestream Auction

Mixed use property comprising vacant shop and let maisonette producing £7,140 pa with off road parking

This freehold mid terrace mixed use property comprises of a ground floor shop and two bedroom maisonette above. The shop (No 10) was previously let to a florist called Daisy Chain and has now been vacant for around six months. The maisonette (10a) has accommodation over the first and second floors and extends to around 67 sq/m. It is let to an established tenant on a 12 month assured shorthold tenancy dated 3rd December 2021 at £595 pcm (£7,140 pa). The property is double glazed and benefits from two off road parking spaces to the rear. It is located in the town centre close to a comprehensive range of services and amenities.

Tenure

Freehold

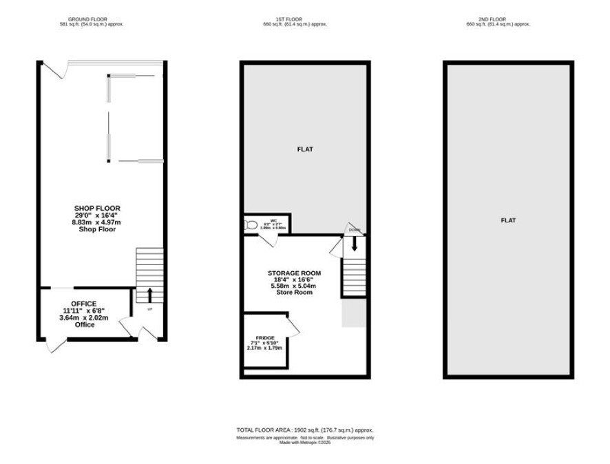
Shop no 10

Ground floor: retail area, kitchenette / storage First floor: commercial storage and wc

Flat no 10a

Around 597 sq/ft of residential accommodation including two bedrooms over first and second floors

Outside

Two off road parking spaces to the rear

Ratable value

According to the Valuation office website, the shop extends to 74.1 sq/m and has a rateable value of £6,500 with effect from the 1st April 2023.

Council Tax Band - Flat 10a

A

Viewings

Viewings are being arranged and the next are Friday 21st March. Please contact the Norwich Office to book an appointment.

Energy Efficiency Rating (EPC)

Current Rating Shop: C Flat: D

Services

Interested parties are requested to make their own enquiries to the relevant authorities as to the availability of services.

Local Authority

North Norfolk District Council

Solicitors

Hansells (Norwich), Ref: Adrian Toulson, Tel: 01603 275 825

Important Notice to Prospective Buyers:

We draw your attention to the Special Conditions of Sale within the Legal Pack, referring to other charges in addition to the purchase price which may become payable. Such costs may include Search Fees, reimbursement of Sellers costs and Legal Fees, and Transfer Fees amongst others.

Additional Fees

Buyer's Premium - £960 inc VAT payable on exchange of contracts.

Administration Charge - £1200 inc VAT payable on exchange of contracts.

Disbursements - Please see the legal pack for any disbursements listed that may become payable by the purchaser on completion.

View Larger Map

Disclaimer: The map preview provided above is for general guidance only and may not accurately reflect the exact location or surrounding buildings. Prospective buyers and interested parties are strongly advised to independently verify the precise location and surroundings before bidding.