For Sale By Auction | 11:00, 26 March 2025 | Lot 4

166 Manor Road, Newton St. Faith, Norwich, Norfolk NR10 3LG

Sold £138,000

  • Link Detached House
  • Tenure: Freehold

Call the team on 01603 505 100 for more information

Auction Date

Wed 26/03/2025

Auction Time

11:00

Auction Venue

Livestream Auction

Three bedroom attached house on large 0.28 acre plot requiring complete refurbishment

Originally The Crown pub the building was converted into a house and two self contained flats in 1962. The two flats at the front coloured yellow are owned by someone else and we are offering the light pink coloured house to the side and rear. The property extends to around 83 sq/m, has gas central heating, is part double glazed and a side and long rear garden. The property requires a programme of modernisation to realise its full potential. The property is located next to Crown Garage around six miles north of Norwich with easy access to the A140 Cromer Road, NDR and Norwich airport.

Tenure

Freehold

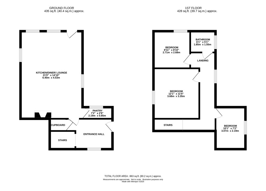
Ground floor

Entrance hall, walk in pantry, kitchen / sitting room

First floor

Landing, three bedrooms, bathroom

Outside

Off road parking, long rear garden in need of attention, dilapidated outbuildings

Council Tax Band

C

Note

Please see special conditions of sale in respect of sale with No Title Guarantee, payment of legal fees on completion and reference to the provisions of the Conveyance of 1961.

Viewings

Individual viewings can be arranged and the next are on the next are Wednesday 12, Friday 14 and Wednesday 19 March - please call to arrange the next available slot on the appropriate viewing day

Energy Efficiency Rating (EPC)

Current Rating E

Services

Interested parties are requested to make their own enquiries to the relevant authorities as to the availability of services.

Local Authority

Broadland District Council

Solicitors

nplaw, Ref: Gerry Casey, Tel: 01603 222925

Important Notice to Prospective Buyers:

We draw your attention to the Special Conditions of Sale within the Legal Pack, referring to other charges in addition to the purchase price which may become payable. Such costs may include Search Fees, reimbursement of Sellers costs and Legal Fees, and Transfer Fees amongst others.

Additional Fees

Buyer's Premium - £960 inc VAT payable on exchange of contracts.

Administration Charge - £1200 inc VAT payable on exchange of contracts.

Disbursements - Please see the legal pack for any disbursements listed that may become payable by the purchaser on completion.

View Larger Map

Disclaimer: The map preview provided above is for general guidance only and may not accurately reflect the exact location or surrounding buildings. Prospective buyers and interested parties are strongly advised to independently verify the precise location and surroundings before bidding.