Sold Prior | Lot 111

80 Breydon Road, Great Yarmouth, Norfolk NR31 0AL

Sold Prior

  • Terraced House
  • 3 Bedrooms
  • Tenure: Freehold

Call the team on 01603 505 100 for more information

Auction Date

Wed 26/03/2025

Auction Time

11:00

Auction Venue

Livestream Auction

Three bedroom mid terrace house in need of improvement

This three bedroom mid terrace terrace house is in need of some improvement. The property extends to around 68 sq/m and benefits from gas central heating, double glazing and a modern bathroom and wet room. It will be sold as seen with vacant possession. It benefits from a modern kitchen and bathroom and good epc C rating making it ideal as a buy to let investment or for owner occupation. It is conveniently located around half a mile west of the town centre. On instruction of mortgagees

Tenure

Freehold

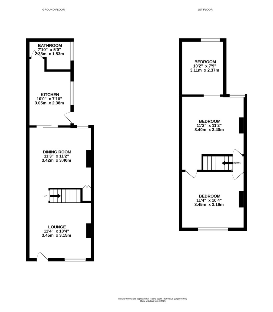
Ground floor

Lounge, dining room, kitchen, bathroom

First floor

Three bedrooms

Outside

Small front garden, rear yard

Council Tax Band

A

Viewings

Viewings are arranged and the next are on Thursday 13 and 20 March. To book an appointment please call the Norwich office

Energy Efficiency Rating (EPC)

Current Rating C

Services

Interested parties are requested to make their own enquiries to the relevant authorities as to the availability of services.

Local Authority

Great Yarmouth Borough Council

Solicitors

TLT Conveyancing, TLT LLP, Ref: TLT Conveyancing, Tel: 0330 1654201

Important Notice to Prospective Buyers:

We draw your attention to the Special Conditions of Sale within the Legal Pack, referring to other charges in addition to the purchase price which may become payable. Such costs may include Search Fees, reimbursement of Sellers costs and Legal Fees, and Transfer Fees amongst others.

Additional Fees

Buyer's Premium - £1200 inc VAT payable on exchange of contracts.

Administration Charge - £1200 inc VAT payable on exchange of contracts.

Disbursements - Please see the legal pack for any disbursements listed that may become payable by the purchaser on completion.

View Larger Map

Disclaimer: The map preview provided above is for general guidance only and may not accurately reflect the exact location or surrounding buildings. Prospective buyers and interested parties are strongly advised to independently verify the precise location and surroundings before bidding.