For Sale By Auction | 11:00, 26 March 2025 | Lot 118

45 North Quay, Great Yarmouth, Norfolk NR30 1JE

Sold £93,000

  • Place of Worship
  • Tenure: Freehold

Call the team on 01603 505 100 for more information

Auction Date

Wed 26/03/2025

Auction Time

11:00

Auction Venue

Livestream Auction

Community hall building with off road parking offering a range of potential uses

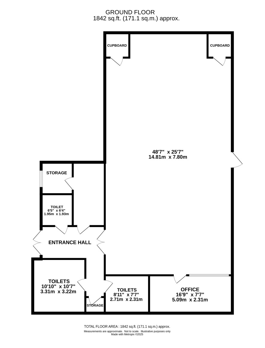
A modern single storey former community hall extending to around 1,481 sq/ft. There are male, female and disabled toilet facilities, office, kitchen and large main room with laminate wooden floor, suspended ceiling with fluorescent lighting and air management system. There is a also a partitioned area to the rear of this with glazed panel. The property requires improvement and benefits from mains electricity, water, drainage and gas. Central heating to the whole property is provided by a boiler located in the ladies cloakroom.

Tenure

Freehold

Accommodation

Main Hall 115.88 sq m (1,247 sq ft) Rear Area 11.10 sq m (119 sq ft) Kitchen 3.13 sq m (34 sq ft) Office 7.55 sq m (81 sq ft) Total: 137.58 sq m (1,481 sq ft)

Planning

The property currently has a D1 (Non Residential Institutions) planning consent and has been most recently used as a meeting hall/function room. This use would automatically allow other uses such as clinics, health centres, crèches, day nurseries, day centres, public libraries, art galleries, exhibition halls etc. The property would be ideal for the use of groups such as the scouts, cadets, local charities, nursery operators, meeting operators etc. Alternatively change of use to B1 (Offices) would also be possible subject to planning

Ratable Value

According to the valuation office website the hall and premises has an area of 154.11 sq/m and a rateable value of £4,350 with effect from 1st April 2023.

Viewing

Individual viewings can be arranged and the next are Thursday 20 March - please call the Norwich office to arrange the next available slot.

Energy Efficiency Rating (EPC)

Current Rating E

Services

Interested parties are requested to make their own enquiries to the relevant authorities as to the availability of services.

Local Authority

Great Yarmouth Borough Council

Solicitors

E&M Solicitors LLP, Ref: Savvas Eracleous, Tel: 020 8450 0737

Important Notice to Prospective Buyers:

We draw your attention to the Special Conditions of Sale within the Legal Pack, referring to other charges in addition to the purchase price which may become payable. Such costs may include Search Fees, reimbursement of Sellers costs and Legal Fees, and Transfer Fees amongst others.

Additional Fees

Buyer's Premium - £600 inc VAT payable on exchange of contracts.

Administration Charge - £1200 inc VAT payable on exchange of contracts.

Disbursements - Please see the legal pack for any disbursements listed that may become payable by the purchaser on completion.

View Larger Map

Disclaimer: The map preview provided above is for general guidance only and may not accurately reflect the exact location or surrounding buildings. Prospective buyers and interested parties are strongly advised to independently verify the precise location and surroundings before bidding.