Sold Prior | Lot 10

57 Hawthorn Bank, Spalding, Lincolnshire PE11 1JJ

Sold Prior

  • Terraced House
  • Tenure: Freehold

Call the team on 01733 889833 for more information

Auction Date

Wed 26/03/2025

Auction Time

11:00

Auction Venue

Livestream Auction

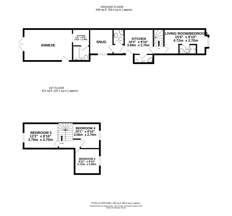
An extended four bedroom terrace house with a one bedroom annexe at the rear.

This terraced four bed house has an annexe at the rear with its own sitting room/ bedroom, kitchen and a bathroom. The house has a ground floor bedroom with three on the first floor and three shower rooms on the ground floor with a kitchen. The property has a gravelled garden at rear. Spalding offers a variety of shops and schools together with a rail link into Peterborough.

Tenure

Freehold

Ground floor

Kitchen, lounge /bedroom, three shower rooms ana snug.

First floor

Landing and three bedrooms.

Annexe

Bed/Sitting room, kitchen and a bathroom.

Outside

Garden gravelled at rear.

Council Tax Band

A

Energy Efficiency Rating (EPC)

Current Rating D

Services

Interested parties are requested to make their own enquiries to the relevant authorities as to the availability of services.

Local Authority

South Holland District Council

Solicitors

TLT Conveyancing, TLT LLP, Ref: TLT Conveyancing, Tel: 0330 1654201

Important Notice to Prospective Buyers:

We draw your attention to the Special Conditions of Sale within the Legal Pack, referring to other charges in addition to the purchase price which may become payable. Such costs may include Search Fees, reimbursement of Sellers costs and Legal Fees, and Transfer Fees amongst others.

Additional Fees

Buyer's Premium - £1200 inc VAT payable on exchange of contracts.

Administration Charge - £1200 inc VAT payable on exchange of contracts.

Disbursements - Please see the legal pack for any disbursements listed that may become payable by the purchaser on completion.

View Larger Map

Disclaimer: The map preview provided above is for general guidance only and may not accurately reflect the exact location or surrounding buildings. Prospective buyers and interested parties are strongly advised to independently verify the precise location and surroundings before bidding.