For Sale By Auction | 11:00, 26 March 2025 | Lot 20

2 Council House, Harleston Road, Rushall, Diss IP21 4RT

Sold £150,000

  • Semi-Detached House
  • 3 Bedrooms
  • Tenure: Freehold

Call the team on 01603 505 100 for more information

Auction Date

Wed 26/03/2025

Auction Time

11:00

Auction Venue

Livestream Auction

An ex local authority semi detached house in need of updating

This ex local authority three bedroom semi detached house requires a program of updating and redecoration. It is now vacant and ideal for owner occupation or investment. The property has a brick out- building and benefits from a generous front and rear garden with off road parking. The property sits in a rural location in the village of Rushall about 8 miles from the town of Diss and 3 miles from Harleston.

Tenure

Freehold

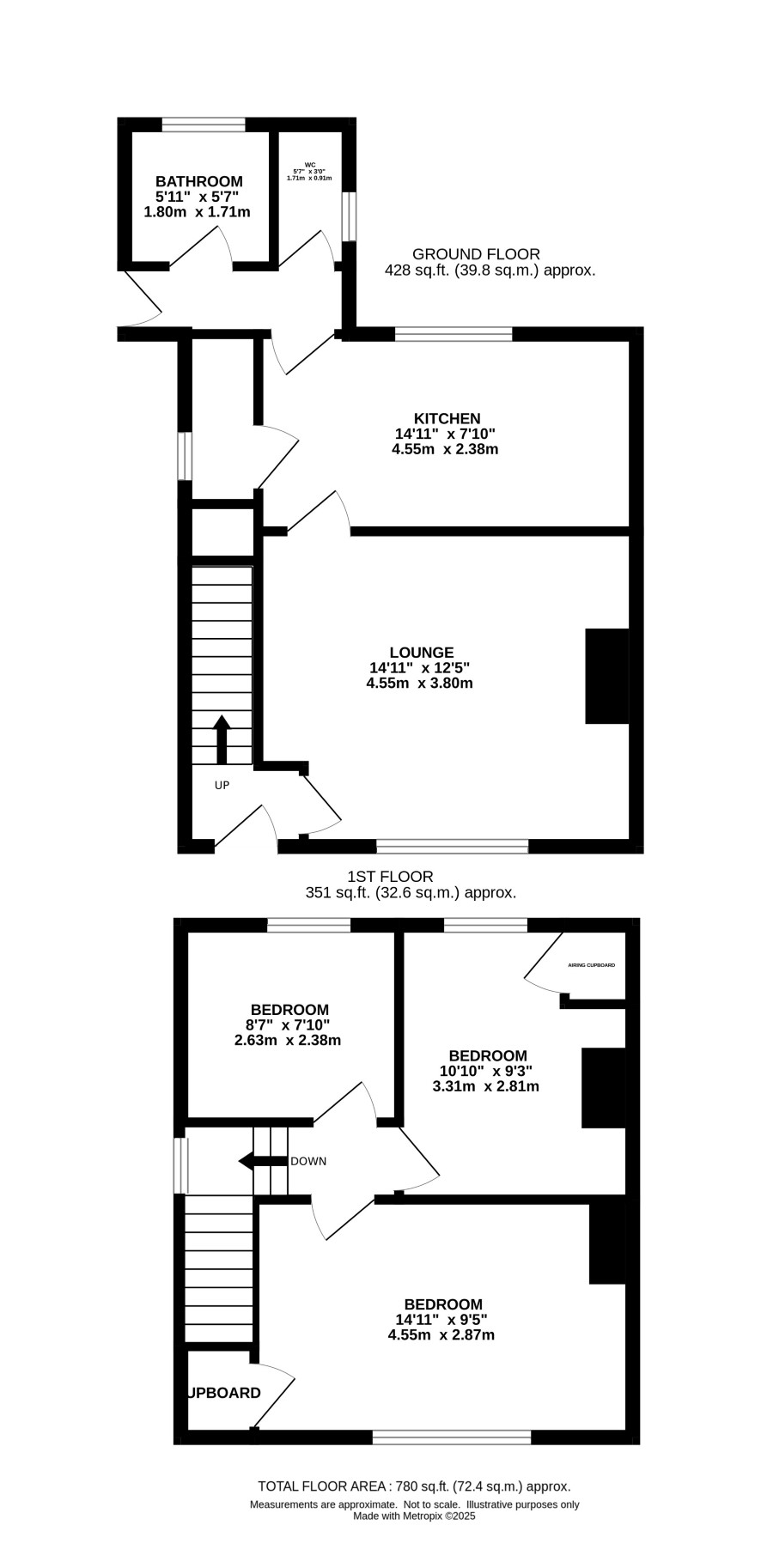
Ground Floor

Entrance hall, lounge, kitchen, bathroom, separate WC

First Floor

Landing, three bedrooms

Outside

Well proportioned front and rear garden, brick out building, off road parking

Council Tax Band

B

Viewings

Viewings are available for Friday 21 March. To book an appointment please call the Norwich office.

Energy Efficiency Rating (EPC)

Current Rating D

Services

Interested parties are requested to make their own enquiries to the relevant authorities as to the availability of services.

Local Authority

South Norfolk Council

Solicitors

Howes Percival (Norwich), Ref: Sally Rackham, Tel: 01603 284250

Important Notice to Prospective Buyers:

We draw your attention to the Special Conditions of Sale within the Legal Pack, referring to other charges in addition to the purchase price which may become payable. Such costs may include Search Fees, reimbursement of Sellers costs and Legal Fees, and Transfer Fees amongst others.

Additional Fees

Buyer's Premium - £900 inc VAT payable on exchange of contracts.

Administration Charge - £1200 inc VAT payable on exchange of contracts.

Disbursements - Please see the legal pack for any disbursements listed that may become payable by the purchaser on completion.

View Larger Map

Disclaimer: The map preview provided above is for general guidance only and may not accurately reflect the exact location or surrounding buildings. Prospective buyers and interested parties are strongly advised to independently verify the precise location and surroundings before bidding.