For Sale By Auction | 10:00, 18 June 2025 | Lot 30

223 High Road, Whaplode, Spalding, Lincolnshire PE12 6TJ

Sold £165,000

  • Detached House
  • 3 Bedrooms
  • Tenure: Freehold

Call the team on 01733 889833 for more information

Auction Date

Wed 18/06/2025

Auction Time

10:00

Auction Venue

Livestream Auction

A detached three bedroom house in need of renovation in the centre of the village offered with vacant possession. An ideal purchase for a developer builder.

This three bedroom detached house offers a lounge, dining room, kitchen, utility room and a W.C on the ground floor with three bedrooms and a bathroom on the first floor. The property offers a corner plot with potential to extend subject to planning permission. Outside offers parking and a single garage. Whaplode provides a Co-op store, village hall and a primary school. The centres of Spalding and Holbeach provides more extensive facilities including at Spalding a rail link.

Tenure

Freehold

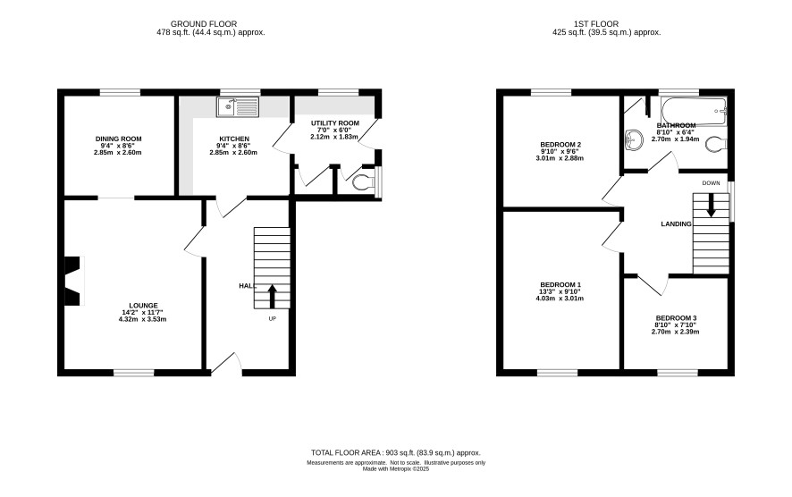
Ground Floor

Hall, lounge, dining room, kitchen utility and a w.c.

First Floor

Landing, three bedrooms and a bathroom.

Outside

A corner plot with a single attached garage.

Energy Efficiency Rating (EPC)

Current Rating D

Services

Interested parties are requested to make their own enquiries to the relevant authorities as to the availability of services.

Local Authority

South Holland District Council

Solicitors

Double & Megson, Ref: Purdy Freeman

Important Notice to Prospective Buyers:

We draw your attention to the Special Conditions of Sale within the Legal Pack, referring to other charges in addition to the purchase price which may become payable. Such costs may include Search Fees, reimbursement of Sellers costs and Legal Fees, and Transfer Fees amongst others.

Additional Fees

Buyer's Premium - £1200 inc VAT payable on exchange of contracts.

Administration Charge - £1200 inc VAT payable on exchange of contracts.

Disbursements - Please see the legal pack for any disbursements listed that may become payable by the purchaser on completion.

View Larger Map

Disclaimer: The map preview provided above is for general guidance only and may not accurately reflect the exact location or surrounding buildings. Prospective buyers and interested parties are strongly advised to independently verify the precise location and surroundings before bidding.