Sold Prior | Lot 36

1 Mill Road, Mutford, Beccles, Norfolk NR34 7UR

Sold Prior

  • Semi-Detached House
  • 4 Bedrooms
  • Tenure: Freehold

Call the team on 01603 505 100 for more information

Auction Date

Wed 10/09/2025

Auction Time

10:00

Auction Venue

Livestream Auction

Exceptionally spacious modern four bedroom semi-detached house situated in the desirable village of Mutford.

This spacious four bedroom semi-detached house is situated on a corner plot of Mill Road. Mutford is a village with an Area of Outstanding Natural Beauty attached making it a desirable place to live. One of three properties built by Gilbert Builders and completed in 2012 for the current owners. The current tenants are vacating at the end of August and with the property is becoming vacant so the owners have decided to sell. Finished to a high standard and kept in good order since built this is an unusual proposition for auction. Each room is larger than average for a modern property and is definitely a feature for a larger family. Offering two generous reception rooms, four bedrooms, with ensuite to master and family bathroom. To the rear of the property there is an enclosed garden and a single garage with parking. Viewing internally is strongly recommended.

Tenure

Freehold

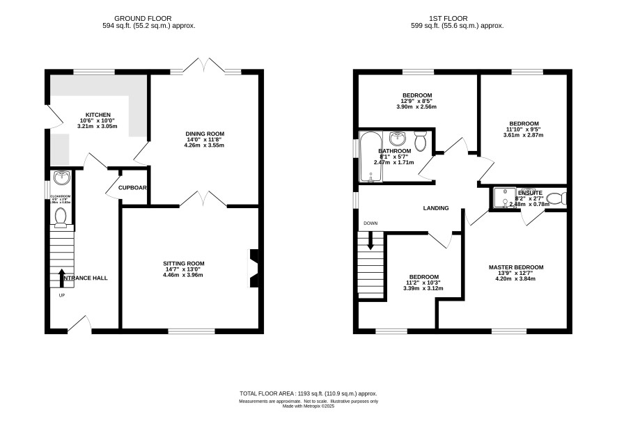
Ground floor

Entrance hall, cloakroom, sitting room, dining room, kitchen.

First floor

Landing, master bedroom with ensuite, three further bedrooms and family bathroom

Exterior

Corner plot with fenced front and side garden. To the rear there is gated access to an enclosed rear garden with shared access to a single garage with up and over door and further parking spaces.

Council Tax Band

C

Viewings

Viewings are available by appointment only on the following days: Thursday 14th August Tuesday 26th August Tuesday 2nd September Thursday 4th September Please call the Norwich Office to book your appointment time

Energy Efficiency Rating (EPC)

Current Rating D

Services

Interested parties are requested to make their own enquiries to the relevant authorities as to the availability of services.

Local Authority

East Suffolk Council

Solicitors

Spire Solicitors LLP (Norwich), Ref: Tracy Guest, Tel: 01603 886221

Important Notice to Prospective Buyers:

We draw your attention to the Special Conditions of Sale within the Legal Pack, referring to other charges in addition to the purchase price which may become payable. Such costs may include Search Fees, reimbursement of Sellers costs and Legal Fees, and Transfer Fees amongst others.

Additional Fees

Buyer's Premium - £960 inc VAT payable on exchange of contracts.

Administration Charge - £1200 inc VAT payable on exchange of contracts.

Disbursements - Please see the legal pack for any disbursements listed that may become payable by the purchaser on completion.

View Larger Map

Disclaimer: The map preview provided above is for general guidance only and may not accurately reflect the exact location or surrounding buildings. Prospective buyers and interested parties are strongly advised to independently verify the precise location and surroundings before bidding.