Postponed | Lot 97

9 Chapel Street, Stretham, Ely, Cambridgeshire CB6 3JG

Postponed

  • Detached House
  • 3 Bedrooms
  • Tenure: Freehold

Call the team on 01733 889833 for more information

Auction Date

Wed 10/09/2025

Auction Time

10:00

Auction Venue

Livestream Auction

A detached three bedroom house in excellent condition with historic charm and modern comfort offered with vacant possession.

This three bedroom detached house has been well maintained by the current owners who have replaced the kitchen, ground floor shower room and the bathroom. The property has exposed timber floors and fireplaces. The kitchen has Bosch appliances and bespoke cabinetry. Outside provides a mature garden which is private. Stretham is located south of Ely and offers a local public house, Post Office general store and walks along the Great Ouse. A rail link into London Kings Cross and Liverpool Street can be found at Ely and Cambridge North.

Tenure

Freehold

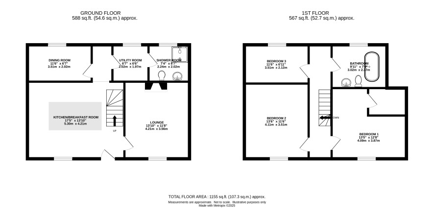
Ground Floor

Hall, lounge, dining room, kitchen and a shower room.

First Floor

Landing master bedroom with an en-suite facility to be completed two further bedrooms and a bathroom.

Outside

Mature gardens at rear backing onto woodland.

Energy Efficiency Rating (EPC)

Current Rating E

Services

Interested parties are requested to make their own enquiries to the relevant authorities as to the availability of services.

Local Authority

East Cambridgeshire District Council

Solicitors

Stanton & Partners, Ref: Claire Stanton, Tel: 07557196612

Important Notice to Prospective Buyers:

We draw your attention to the Special Conditions of Sale within the Legal Pack, referring to other charges in addition to the purchase price which may become payable. Such costs may include Search Fees, reimbursement of Sellers costs and Legal Fees, and Transfer Fees amongst others.

Additional Fees

Buyer's Premium - £1200 inc VAT payable on exchange of contracts.

Administration Charge - £1200 inc VAT payable on exchange of contracts.

Disbursements - Please see the legal pack for any disbursements listed that may become payable by the purchaser on completion.

View Larger Map

Disclaimer: The map preview provided above is for general guidance only and may not accurately reflect the exact location or surrounding buildings. Prospective buyers and interested parties are strongly advised to independently verify the precise location and surroundings before bidding.