For Sale By Auction | 10:00, 10 September 2025 | Lot 43

Flat 17, Sheringham Court, Weybourne Road, Sheringham, Norfolk NR26 8HF

Sold £56,000

  • Flat
  • 1 Bedroom
  • Tenure: Leasehold. 99 Years from 1st January 1984

Call the team on 01603 505 100 for more information

Auction Date

Wed 10/09/2025

Auction Time

10:00

Auction Venue

Livestream Auction

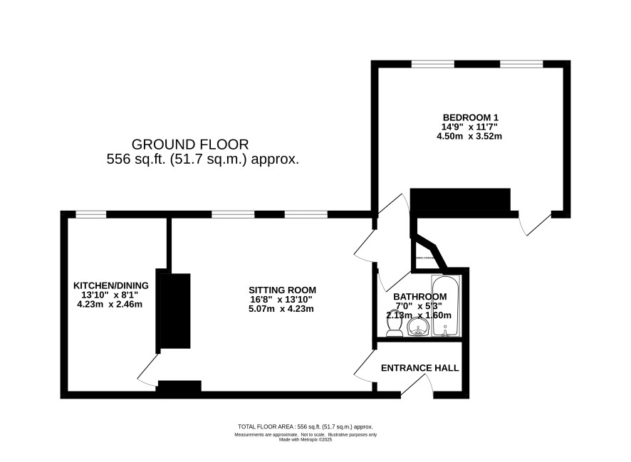
A one bedroom second floor apartment requiring refurbishment.

This over 50's one bedroom second floor apartment is situated in a converted Victorian hotel and is well situated from the town centre, beach, train station as well as within close proximity to golf course, leisure centre and bowls club. The property is now in need of refurbishment and comprises: double bedroom, sitting room, kitchen/dining area and bathroom. The property is offered on a leasehold basis 99 years, with 58 years remaining. Suitable for cash buyers only.

Tenure

Leasehold. 99 Years from 1st January 1984

Main Entrance

Main reception hall with grand sweeping staircases to the first floor. A further entrance from the car park gives level entry into the building with stairs and lift access to the second floor.

Accommodation

Entrance lobby, sitting room, kitchen/dining area, inner lobby, bathroom, bedroom with fire exit

Outside

The grounds, which are mainly laid to shingle to provide off road parking for the residents and their visitors. There is vehicular access from Holt Road and pedestrian access off Weybourne Road.

Services

Mains electricity, (Night storage heaters) water and drainage

Agents Note

The Lease refers to a Schedule VII which sets out the provisions for disposal of the Lease. The Schedule is missing from the Lease so it is not known what the provisions are. The Lease could be considered defective and that the Landlord may have assignment requirements that are not present in the copy Lease. The majority of the flats in the block appear to have been extended/varied. It is possible that the Landlord has a practice of surrendering and granting a new extended lease upon resale to correct these problems. A Landlord's LPE1 pack would give further guidance/to see the Landlord's requirements on assignment. One of the purchasers must be over 50. The lease prevents the keeping of pets and holiday lets.

Tenure

Leasehold - 99 Years from the 1st January 1984 (58 years remaining) Annual Ground Rent - TBC Annual Service Charge TBC Please refer to the legal pack.

Viewings

Appointments are available on Thursday 21st August, Wednesday 27th August, Friday 29th August and Thursday 4th September. Please call the Norwich office to book your slot.

Energy Efficiency Rating (EPC)

Current Rating E

Services

Interested parties are requested to make their own enquiries to the relevant authorities as to the availability of services.

Local Authority

North Norfolk District Council

Solicitors

Enact Conveyancing, PO Box Hk3, Ref: Enact Conveyancing, Tel: 0344 244 3282

Important Notice to Prospective Buyers:

We draw your attention to the Special Conditions of Sale within the Legal Pack, referring to other charges in addition to the purchase price which may become payable. Such costs may include Search Fees, reimbursement of Sellers costs and Legal Fees, and Transfer Fees amongst others.

Additional Fees

Buyer's Premium - £1560 inc VAT payable on exchange of contracts.

Administration Charge - £1200 inc VAT payable on exchange of contracts.

Disbursements - Please see the legal pack for any disbursements listed that may become payable by the purchaser on completion.

View Larger Map

Disclaimer: The map preview provided above is for general guidance only and may not accurately reflect the exact location or surrounding buildings. Prospective buyers and interested parties are strongly advised to independently verify the precise location and surroundings before bidding.