Call the team on 01702 939933 for more information
Freehold block of three quality recently configured studio flats in excellent city centre location
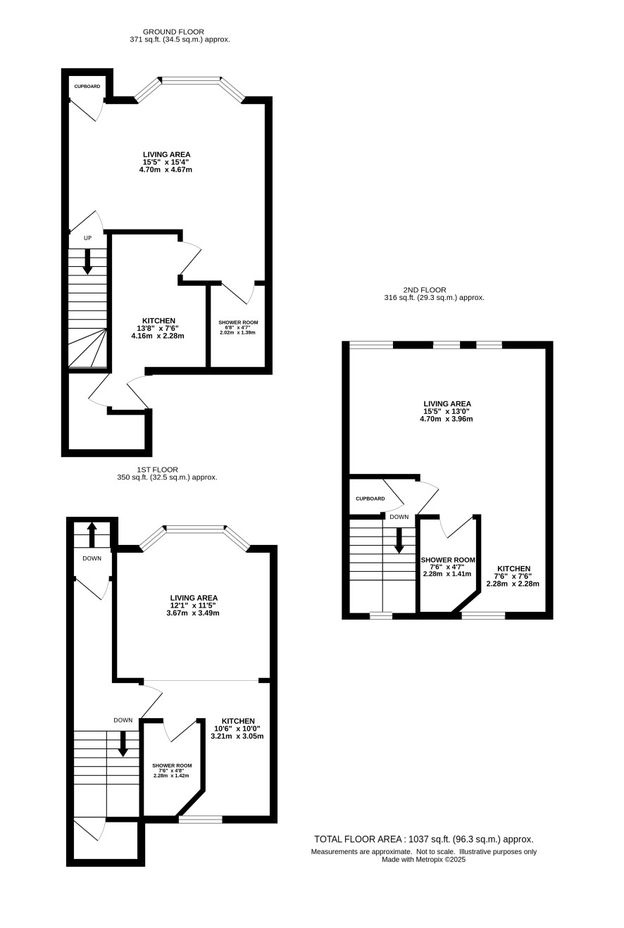
An attractive three storey building which was converted recently into three good quality studio flats. Two of the flats are currently let on Assured Shorthold Tenancies the third is vacant. The current full gross rental value is estimated to be around £33,000-£34,000 PA.
Tenure
Freehold
Communal entrance Door, hallways and staircases.
Lower Ground Floor
Flat 1 Studio flat comprising Lounge/Bedroom, Kitchen/dining and Shower Room
Ground Floor
Flat 2 Studio flat comprising Lounge/Bedroom, Kitchen area and Shower Room
First Floor
Flat 3 Studio Flat comprising Lounge/Bedroom/kitchen and Shower Room
Council Tax Band
A
Energy Efficiency Rating (EPC)
Current Rating C, C and C
Services
Interested parties are requested to make their own enquiries to the relevant authorities as to the availability of services.
Local Authority
Southend on Sea Borough Council
Solicitors
Metrolaw Solicitors, 92 Goodmayes Road, Ref: Sumair Iqbal, Tel: 02085901100
Important Notice to Prospective Buyers:
We draw your attention to the Special Conditions of Sale within the Legal Pack, referring to other charges in addition to the purchase price which may become payable. Such costs may include Search Fees, reimbursement of Sellers costs and Legal Fees, and Transfer Fees amongst others.
Additional Fees
Buyer's Premium - £1200 inc VAT payable on exchange of contracts.
Administration Charge - £1200 inc VAT payable on exchange of contracts.
Disbursements - Please see the legal pack for any disbursements listed that may become payable by the purchaser on completion.
Disclaimer: The map preview provided above is for general guidance only and may not accurately reflect the exact location or surrounding buildings. Prospective buyers and interested parties are strongly advised to independently verify the precise location and surroundings before bidding.