For Sale By Auction | 10:00, 10 September 2025 | Lot 31

23 Fairholme Road, Newton St. Faith, Norwich, Norfolk NR10 3LL

Sold £315,000

  • Detached Bungalow
  • 4 Bedrooms
  • Tenure: Freehold

Call the team on 01603 505 100 for more information

Auction Date

Wed 10/09/2025

Auction Time

10:00

Auction Venue

Livestream Auction

A detached four bedroom chalet requiring modernisation. Possible development potential (stpp)

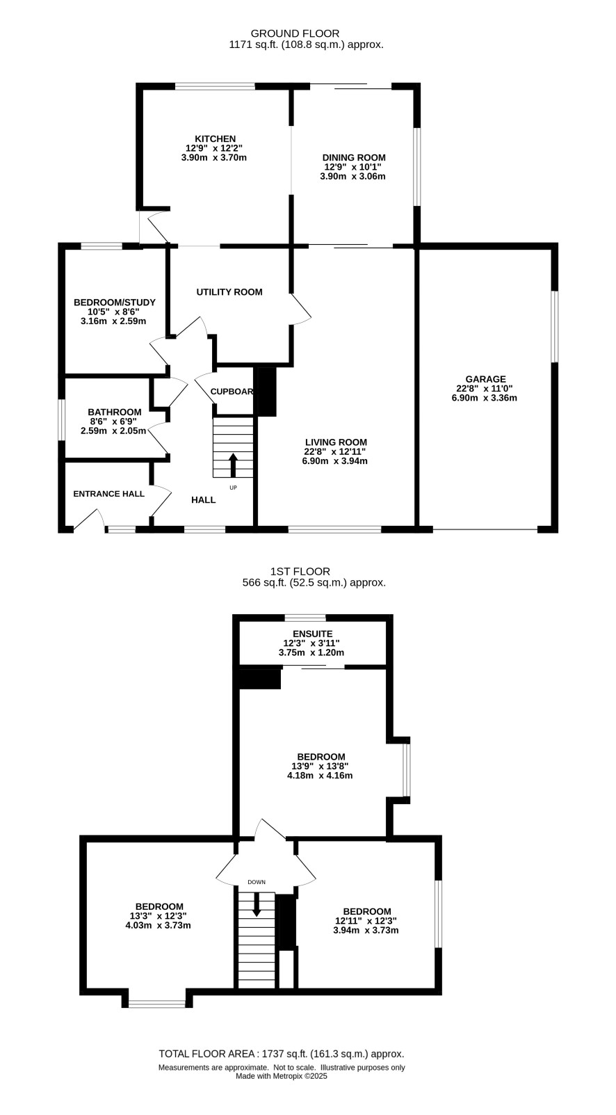
This spacious detached chalet has been previously extended and now provides generous accommodation that includes a large living room, dining room, kitchen with utility area and ground floor bathroom. There is a possible fourth bedroom or study also on the ground floor and three double bedrooms and and en-suite bathroom on the first floor. There is ample space to further extend the property or there may be potential to develop to the side as the gardens extend to approximately 0.25 acres (stms). Newton St Faiths is located approximately 3 miles North of Norwich Airport within a delightful countryside setting.

Tenure

Freehold

Ground Floor

Hall, lounge, dining room, kitchen, study/bedroom 4, bathroom

First Floor

Landing, three bedrooms, en-suite bathroom

Outside

Generous gardens to front, side and rear backing onto farmland. Off road parking and garage

Council Tax Band

D

Viewings

Viewings are available by appointment only. The next are on Friday 5 September. To book a viewing please contact the Norwich office.

Energy Efficiency Rating (EPC)

Current Rating C

Services

Interested parties are requested to make their own enquiries to the relevant authorities as to the availability of services.

Local Authority

Broadland District Council

Solicitors

Fosters (Wymondham), Ref: Sue Zavanaiu, Tel: 01953 607724

Offered in association with

Normove

Important Notice to Prospective Buyers:

We draw your attention to the Special Conditions of Sale within the Legal Pack, referring to other charges in addition to the purchase price which may become payable. Such costs may include Search Fees, reimbursement of Sellers costs and Legal Fees, and Transfer Fees amongst others.

Additional Fees

Buyer's Premium - £720 inc VAT payable on exchange of contracts.

Administration Charge - £1200 inc VAT payable on exchange of contracts.

Disbursements - Please see the legal pack for any disbursements listed that may become payable by the purchaser on completion.

View Larger Map

Disclaimer: The map preview provided above is for general guidance only and may not accurately reflect the exact location or surrounding buildings. Prospective buyers and interested parties are strongly advised to independently verify the precise location and surroundings before bidding.