For Sale By Auction | 10:00, 22 October 2025 | Lot 90

83 Anchor Court, Argent Street, Grays, Essex RM17 6QP

*Guide | £150,000 (plus fees)

  • Flat
  • 2 Bedrooms
  • Tenure: Leasehold.

Call the team on 01702 939933 for more information

Auction Date

Wed 22/10/2025

Auction Time

10:00

Auction Venue

Livestream Auction

Viewing Times:

Thu 25 Sep

12:00-12:30

A vacant second floor flat in this attractive contemporary block in the ever popular Grays Riverside

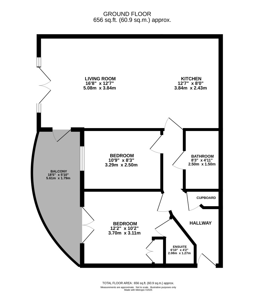
This good sized, well planned two bedroomed flat enjoys a spacious lounge with fitted kitchen area, balcony and en-suite to master bedroom. The block benefits from lifts to all floors and there there is an allocated car parking space. The lease has an unexpired Term of approximately 105 years. Grays Town Centre and Railway station is less than 500m away.

Tenure

Leasehold.

Communal Entrance hallways stairs and lifts to:

Second floor

Personal Entrance door Entrance Hall Lounge 16'8" x 12'7" Kitchen area 12'7 x 8' Bedroom 1 12'2" x 10'2" En-suite 6'10" x 4'2" Bedroom 2 10'9" x 8'3" Bathroom 8'3" x 4'11" Balcony 18'5" x 5'10" Accessed from Lounge and Bedroom 1

Externally

Well kept communal gardens. Allocated car parking space.

Council Tax Band

D

Lease details

Term: 125 years from 01.01.2005 (105 years remaining) Annual ground rent amount: Please refer to legal pack Ground rent review period: Please refer to legal pack Annual service charge amount: Please refer to legal pack Service charge review period: Please refer to legal pack

Energy Efficiency Rating (EPC)

Current Rating C

Services

Interested parties are requested to make their own enquiries to the relevant authorities as to the availability of services.

Local Authority

Thurrock Council

Solicitors

TLT Conveyancing, TLT LLP, Ref: TLT Conveyancing, Tel: 0330 1654201

Important Notice to Prospective Buyers:

We draw your attention to the Special Conditions of Sale within the Legal Pack, referring to other charges in addition to the purchase price which may become payable. Such costs may include Search Fees, reimbursement of Sellers costs and Legal Fees, and Transfer Fees amongst others.

Additional Fees

Buyer's Premium - £1200 inc VAT payable on exchange of contracts.

Administration Charge - £1200 inc VAT payable on exchange of contracts.

Disbursements - Please see the legal pack for any disbursements listed that may become payable by the purchaser on completion.

View Larger Map

Disclaimer: The map preview provided above is for general guidance only and may not accurately reflect the exact location or surrounding buildings. Prospective buyers and interested parties are strongly advised to independently verify the precise location and surroundings before bidding.