For Sale By Auction | 10:00, 22 October 2025 | Lot 132

67 and 69 Harebell Way, Lowestoft, Suffolk NR33 8EX

Sold £126,500

  • Flat
  • 2 Bedrooms
  • Tenure: Freehold

Call the team on 01603 505 100 for more information

Auction Date

Wed 22/10/2025

Auction Time

10:00

Auction Venue

Livestream Auction

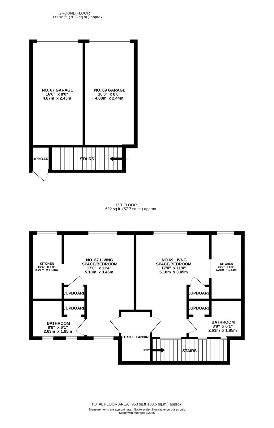
Two freehold studio flats, one with garden and each with garage in popular residential area of Carlton Colville.

A rare opportunity to acquire two compact residential side-by-side units, situated in the popular Carlton Colville area of Lowestoft. No. 69 was recently let on Assured Standard Tenancy producing £500 pcm (£6,000 pa) whilst No. 67 has very recently become vacant after being tenanted for several years and is now in need of some repair and updating before it could be re let. Located on this popular residential estate these flats are ideal for those looking for easily lettable investments. Both flats have a garage below as well as further parking and benefit from a garden to the side. Together these two freehold properties offer a strong potential yield.

Tenure

Freehold

Accommodation

Exterior stairs lead up to the entrance to both flats, each flat has main living space/bedroom area with kitchen and separate bathroom.

Council Tax Band

A, A

Viewings

Viewings are available on request Please contact the Norwich Office to book your appointment

Note:

The Interior photos of no. 69 were taken in Spring 2025 prior to the current tenant moving in.

Energy Efficiency Rating (EPC)

Current Rating D, C

Services

Interested parties are requested to make their own enquiries to the relevant authorities as to the availability of services.

Local Authority

East Suffolk Council

Solicitors

Spire Solicitors LLP (Norwich), Ref: Tracy Guest, Tel: 01603 886221

Important Notice to Prospective Buyers:

We draw your attention to the Special Conditions of Sale within the Legal Pack, referring to other charges in addition to the purchase price which may become payable. Such costs may include Search Fees, reimbursement of Sellers costs and Legal Fees, and Transfer Fees amongst others.

Additional Fees

Buyer's Premium - £960 inc VAT payable on exchange of contracts.

Administration Charge - £1200 inc VAT payable on exchange of contracts.

Disbursements - Please see the legal pack for any disbursements listed that may become payable by the purchaser on completion.

View Larger Map

Disclaimer: The map preview provided above is for general guidance only and may not accurately reflect the exact location or surrounding buildings. Prospective buyers and interested parties are strongly advised to independently verify the precise location and surroundings before bidding.