For Sale By Auction | 10:00, 22 October 2025 | Lot 35

Rose Cottage, Wood Norton Road, Stibbard, Fakenham, Norfolk NR21 0EY

*Guide | £225,000 (plus fees)

  • Detached House
  • 3 Bedrooms
  • Tenure: Freehold

Call the team on 01603 505 100 for more information

Auction Date

Wed 22/10/2025

Auction Time

10:00

Auction Venue

Livestream Auction

This three bedroom detached character cottage is situated in a rural setting on the edge of the village just 25 minute drive to the north Norfolk coastline.

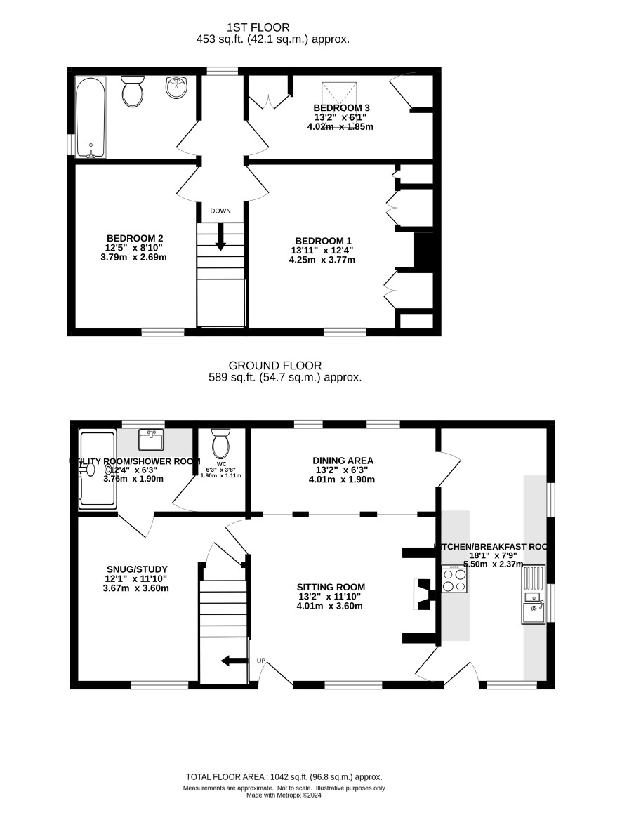
This detached cottage is side on to the road with rendered elevations and has many period features such as exposed beams, latch doors and an impressive fireplace. On the ground floor accommodation comprises: a kitchen/breakfast room, sitting room which is open plan to the dining area, a further reception room or alternatively ground floor bedroom with shower room, utility area and separate cloakroom. On the first floor: 3 bedrooms and a bathroom.

Tenure

Freehold

Ground Floor

Sitting room with open plan dining area, kitchen/breakfast room, further reception or ground floor bedroom with access into a shower room with separate cloakroom.

First Floor

Three bedrooms (two double and a single) and a bathroom.

Services

Mains water, private drainage and mains electricity. Electric radiator heating.

Agents Note

The occupiers of Rose Cottage have used the area of grassland opposite Rose Cottage (unregistered land) to park thereon. The Septic Tank is situated on the unregistered land next to the property. There is an indemnity policy in place dated the 8th October 1997 (copy enclosed within the Legal Pack).

Location

Stibbard is a rural village with a primary school, Village Hall and a Parish Church.The village is conveniently located 5 miles east of the market town of Fakenham with the Georgian market town of Holt 13 miles to the north east.

Viewings

Viewings are currently being arranged and the next are on Friday 3rd October, Thursday 9th October and Tuesday 14th October. Please contact the Norwich Office to book your appointment.

Council Tax Band

C

Energy Efficiency Rating (EPC)

Current Rating F

Services

Interested parties are requested to make their own enquiries to the relevant authorities as to the availability of services.

Local Authority

North Norfolk District Council

Solicitors

Leathes Prior (The Close), Ref: Rachael Hughes, Tel: 01603 281004

Important Notice to Prospective Buyers:

We draw your attention to the Special Conditions of Sale within the Legal Pack, referring to other charges in addition to the purchase price which may become payable. Such costs may include Search Fees, reimbursement of Sellers costs and Legal Fees, and Transfer Fees amongst others.

Additional Fees

Buyer's Premium - £600 inc VAT payable on exchange of contracts.

Administration Charge - £1200 inc VAT payable on exchange of contracts.

Disbursements - Please see the legal pack for any disbursements listed that may become payable by the purchaser on completion.

View Larger Map

Disclaimer: The map preview provided above is for general guidance only and may not accurately reflect the exact location or surrounding buildings. Prospective buyers and interested parties are strongly advised to independently verify the precise location and surroundings before bidding.