Sold Prior | Lot 75

163 St. Helens Street, Ipswich, Suffolk IP4 2LJ

Sold Prior

  • Terraced House
  • 4 Bedrooms
  • Tenure: Freehold

Call the team on 01473 558 888 for more information

Auction Date

Wed 22/10/2025

Auction Time

10:00

Auction Venue

Livestream Auction

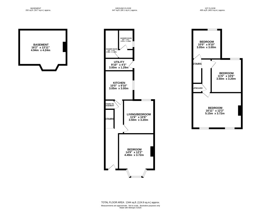
A potentially high yielding HMO close to the town centre

Situated on the eastern fringe of the town centre is this spacious terraced house configured as a four (potentially five) letting room HMO. The accommodation includes two shower rooms, is presented in good order throughout and is to be sold with vacant possession to include all furnishings. Potential income as a four room unit is £30,000+ per annum and with such strong demand for rentals in the area represents a first class investment opportunity.

Tenure

Freehold

Council Tax Band

B

Energy Efficiency Rating (EPC)

Current Rating C

Services

Interested parties are requested to make their own enquiries to the relevant authorities as to the availability of services.

Local Authority

Ipswich Borough Council

Solicitors

Kerseys Solicitors, Ref: Mehmet Duzgun, Tel: 01473 407107

Important Notice to Prospective Buyers:

We draw your attention to the Special Conditions of Sale within the Legal Pack, referring to other charges in addition to the purchase price which may become payable. Such costs may include Search Fees, reimbursement of Sellers costs and Legal Fees, and Transfer Fees amongst others.

Additional Fees

Buyer's Premium - £1140 inc VAT payable on exchange of contracts.

Administration Charge - £1200 inc VAT payable on exchange of contracts.

Disbursements - Please see the legal pack for any disbursements listed that may become payable by the purchaser on completion.

View Larger Map

Disclaimer: The map preview provided above is for general guidance only and may not accurately reflect the exact location or surrounding buildings. Prospective buyers and interested parties are strongly advised to independently verify the precise location and surroundings before bidding.