For Sale By Auction | 10:00, 22 October 2025 | Lot 87

The Bell Inn, Newmarket Road, Kennett, Newmarket CB8 7PP

*Guide | £650,000 (plus fees)

  • Pub
  • 13 Bedrooms
  • Tenure: Freehold

Call the team on 01473 558 888 for more information

Auction Date

Wed 22/10/2025

Auction Time

10:00

Auction Venue

Livestream Auction

Freehold Country Inn with letting rooms, restaurant and owner's accommodation

The Bell Inn is a charming and quintessential English country pub, dating back to the early 1500s, set in the sought-after village of Kennett on the Suffolk-Cambridgeshire border. This detached, Grade II Listed building showcases original Tudor-style features including exposed timber beams and a stunning Inglenook fireplace. The premises include a welcoming pub and dining area, a well-established restaurant, spacious private owner's accommodation, and ten individually styled guest rooms, each with its own en-suite facilities, making it an ideal venture for those seeking a turnkey hospitality business with character and strong potential.

Tenure

Freehold

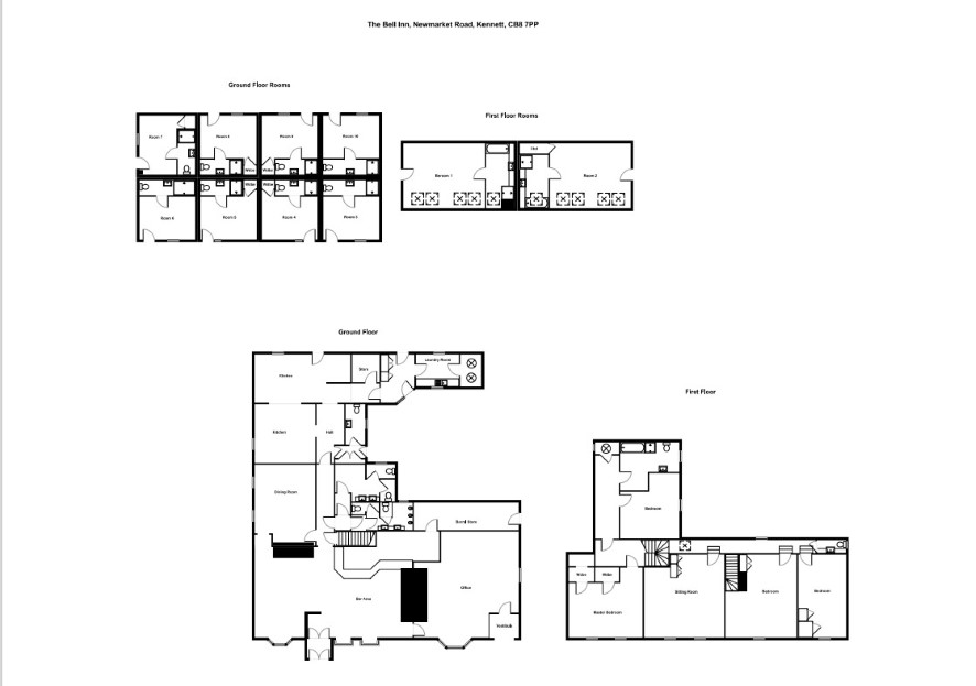
Main Building

A welcoming bar and lounge area with traditional oak timbers and seating for up to 50 guests across two levels. A dedicated restaurant space with capacity for a further 30 covers. A separate lounge bar with its own entrance (currently operating as an independent business), seating up to 30 guests. A large, fully equipped commercial kitchen, complete with canopy, double cookers, fryers, stainless steel prep areas, and separate washing/utility zones. To the rear & side of the property, a beautiful courtyard garden offers al fresco seating for around 80 patrons—perfect for summer trade.

Accommodation

A major advantage of the Bell Inn is its separate two-storey accommodation block, built approximately 7 years ago. This comprises 10 high-quality ensuite letting rooms, each finished to a modern hotel standard, ideal for both tourist and business clientele. In addition, the first floor of the main inn provides a large 3-bedroom private owner’s flat, Lounge, Bathroom, Kitchen / office space suitable for on-site management or further potential letting accommodation.

Business Potential

The Bell Inn presents a unique opportunity to acquire a ready-to-trade venue with clear upside potential, including: Expanding trading hours and services Hosting events, functions, or weddings Leveraging RAF Lakenheath and Mildenhall accommodation demand Reintegrating the currently sublet bar area into core business use Increasing marketing and online presence for the letting rooms This is an ideal investment for an experienced operator, pub chain, or hospitality group seeking to add a high-performing and character-rich venue to their portfolio.

Location

The Bell occupies a highly visible position on the B1506, the busy route connecting Newmarket to Bury St Edmunds, and is within one mile of the A14, offering rapid access to Cambridge, the M11 ( 15 Minutes) , and Stansted Airport (40 minutes). Newmarket, just minutes away, is home to the Rowley Mile and July Racecourses, Tattersalls Sales Ring, the National Horseracing Museum, and many world-renowned stud farms including Cheveley Park and The National Stud—making this an ideal hospitality base for racing and equestrian visitors.

VAT

Please note the purchase price is subject to VAT.

Energy Efficiency Rating (EPC)

Current Rating D

Services

Interested parties are requested to make their own enquiries to the relevant authorities as to the availability of services.

Local Authority

West Suffolk Council

Solicitors

Rudlings LLP, Ref: Steven McGrath, Tel: 01842 754151

Offered in association with

Clarke Philips

Important Notice to Prospective Buyers:

We draw your attention to the Special Conditions of Sale within the Legal Pack, referring to other charges in addition to the purchase price which may become payable. Such costs may include Search Fees, reimbursement of Sellers costs and Legal Fees, and Transfer Fees amongst others.

Additional Fees

Buyer's Premium - £1200 inc VAT payable on exchange of contracts.

Administration Charge - £1200 inc VAT payable on exchange of contracts.

Disbursements - Please see the legal pack for any disbursements listed that may become payable by the purchaser on completion.

View Larger Map

Disclaimer: The map preview provided above is for general guidance only and may not accurately reflect the exact location or surrounding buildings. Prospective buyers and interested parties are strongly advised to independently verify the precise location and surroundings before bidding.