For Sale By Auction | 10:00, 22 October 2025 | Lot 11

1 Post Office Road, Toft Monks, Beccles, Suffolk NR34 0EH

*Guide | £140,000 - £160,000 (plus fees)

  • Semi-Detached House
  • 3 Bedrooms
  • Tenure: Freehold

Call the team on 01603 505 100 for more information

Auction Date

Wed 22/10/2025

Auction Time

10:00

Auction Venue

Livestream Auction

An ex local authority three bedroom semi detached house in need of updating, located in a delightful rural setting

This vacant, ex local authority three bedroom semi detached house now requires a program of updating and redecoration. The house has oil central heating and is fully double glazed. It would be ideal for family occupation and offers an exciting project for builder, investor or private buyer. There are generous front and rear gardens with off road parking and ample space for further extension (subject to planning). Beccles is within three miles where a comprehensive range of amenities can be found.

Tenure

Freehold

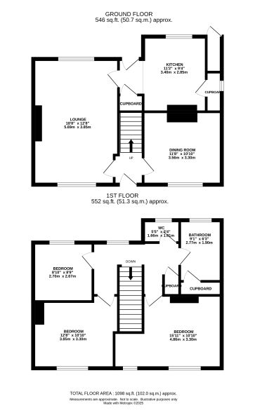
Ground Floor

Hall, lounge, dining room, kitchen.

First Floor

Landing three bedrooms, bathroom, separate w.c.

Council Tax Band

B

Viewing

Viewings are available by appointment on the following days: Wednesday 1 October Friday 10 October Wednesday 15 October Thursday 16 October Please call the Norwich office to book you appointment time.

Energy Efficiency Rating (EPC)

Current Rating E

Services

Interested parties are requested to make their own enquiries to the relevant authorities as to the availability of services.

Local Authority

South Norfolk Council

Solicitors

Howes Percival (Norwich), Ref: Sally Rackham, Tel: 01603 284250

Important Notice to Prospective Buyers:

We draw your attention to the Special Conditions of Sale within the Legal Pack, referring to other charges in addition to the purchase price which may become payable. Such costs may include Search Fees, reimbursement of Sellers costs and Legal Fees, and Transfer Fees amongst others.

Additional Fees

Buyer's Premium - £900 inc VAT payable on exchange of contracts.

Administration Charge - £1200 inc VAT payable on exchange of contracts.

Disbursements - Please see the legal pack for any disbursements listed that may become payable by the purchaser on completion.

View Larger Map

Disclaimer: The map preview provided above is for general guidance only and may not accurately reflect the exact location or surrounding buildings. Prospective buyers and interested parties are strongly advised to independently verify the precise location and surroundings before bidding.