For Sale By Auction | 10:00, 22 October 2025 | Lot 30 - AVAILABLE POST AUCTION

Land rear of 35 Market Place, Dereham, Norfolk NR19 2AP

*Guide | £130,000 - £150,000 (plus fees)

  • Land
  • Tenure: Freehold

Call the team on 01603 505 100 for more information

Auction Date

Wed 22/10/2025

Auction Time

10:00

Auction Venue

Livestream Auction

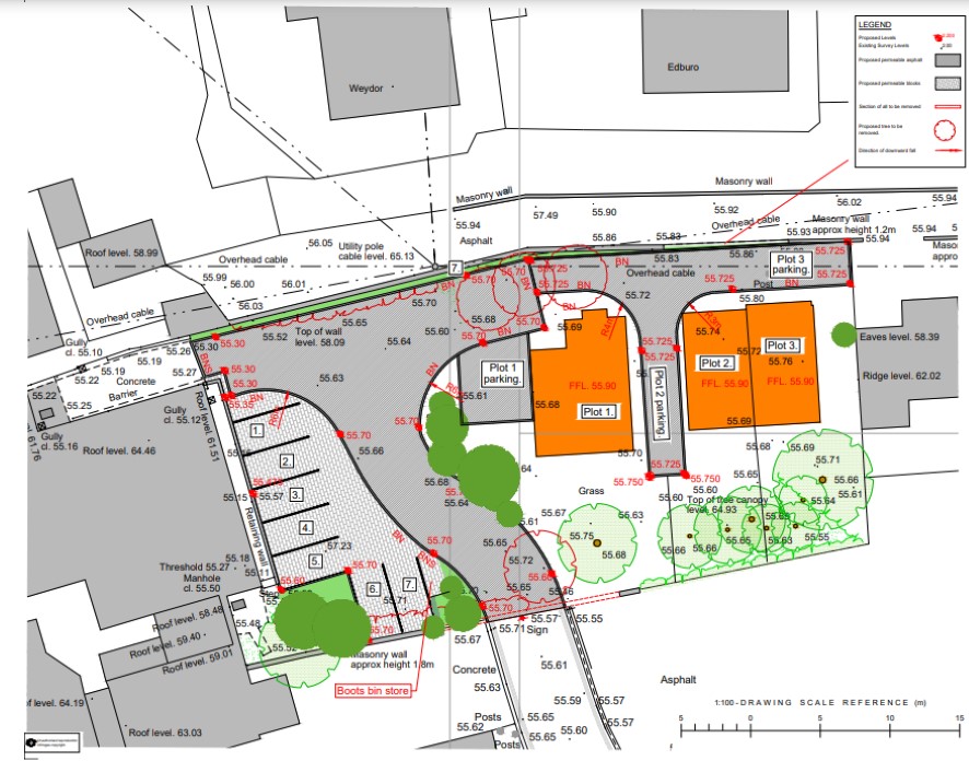
Development site with planning permission for three houses set in just under a third of an acre

This is an exciting development opportunity comprising a town centre development site extending to around 0.29 of an acre (stms). It has outline planning permission for one detached house and two semi detached houses. Plans drawn up allow for one 102 sq/m detached house and two 70 sq/m semi detached houses. The site is currently used for car parking and is located in the town centre just off the Market Place. We are informed by the seller that nutrient neutrality credits have been paid for. An ideal project for builder / developer.

Tenure

Freehold

Planning

Outline planning permission for three dwellings with all matters reserved except for access and layout, with associated parking, amenity and substantial highway improvements was granted by Breckland Council on 28th August 2025. Reference: PL/2025/0107/OMIN. Further details can be found on the public access website of Breckland Council, www.breckland.gov.uk/planning.

Viewing

Any reasonable time during daylight hours. All persons viewing should be aware that they enter the site entirely at their own risk.Please would all interested parties register their interest with the Auctioneers in order that they may be kept up to date with any developments.

Services

Interested parties are requested to make their own enquiries to the relevant authorities as to the availability of services.

Local Authority

Breckland Council

Solicitors

Spire Solicitors LLP (Norwich), Ref: Ruth Collett, Tel: 01603 677077

Important Notice to Prospective Buyers:

We draw your attention to the Special Conditions of Sale within the Legal Pack, referring to other charges in addition to the purchase price which may become payable. Such costs may include Search Fees, reimbursement of Sellers costs and Legal Fees, and Transfer Fees amongst others.

Additional Fees

Buyer's Premium - £960 inc VAT payable on exchange of contracts.

Administration Charge - £1200 inc VAT payable on exchange of contracts.

Disbursements - Please see the legal pack for any disbursements listed that may become payable by the purchaser on completion.

View Larger Map

Disclaimer: The map preview provided above is for general guidance only and may not accurately reflect the exact location or surrounding buildings. Prospective buyers and interested parties are strongly advised to independently verify the precise location and surroundings before bidding.