Sold Prior | Lot 26

20 Blyburgate , Beccles, Suffolk NR34 9TB

Sold Prior

  • Retail Property (high street)
  • Tenure: Freehold

Call the team on 01473 558 888 for more information

Auction Date

Wed 22/10/2025

Auction Time

10:00

Auction Venue

Livestream Auction

Spacious town centre commercial unit with parking offering redevelopment potential

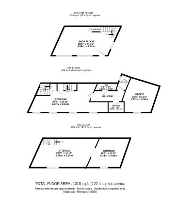
Situated in a prominent position in Beccles town centre is this spacious three story commercial unit with a potential rental value of £12,000 pa. The property has parking for four cars to the rear, but could benefit with some modernisation. It also offers scope for conversion and redevelopment. Beccles is an historic market town located in the county of Suffolk, England, near the border with Norfolk. Nestled on the banks of the River Waveney, it forms part of the scenic Broads National Park—a network of rivers and lakes known for their natural beauty and opportunities for boating and wildlife spotting.

Tenure

Freehold

Business Rates

The Valuation Office Agency website indicates that the 1 April 2023 to present rateable value is £5,100. This is not the annual rates payable. Interested parties may wish to note that qualifying occupiers may be entitled to 100% rate relief on properties with a rateable value of less than £12,000.

Energy Efficiency Rating (EPC)

Current Rating D

Services

Interested parties are requested to make their own enquiries to the relevant authorities as to the availability of services.

Local Authority

East Suffolk Council

Solicitors

Mears Hobbs and Durrant (Lowestoft), Ref: Richard Temple, Tel: 07908 987100

Important Notice to Prospective Buyers:

We draw your attention to the Special Conditions of Sale within the Legal Pack, referring to other charges in addition to the purchase price which may become payable. Such costs may include Search Fees, reimbursement of Sellers costs and Legal Fees, and Transfer Fees amongst others.

Additional Fees

Buyer's Premium - £1140 inc VAT payable on exchange of contracts.

Administration Charge - £1200 inc VAT payable on exchange of contracts.

Disbursements - Please see the legal pack for any disbursements listed that may become payable by the purchaser on completion.

View Larger Map

Disclaimer: The map preview provided above is for general guidance only and may not accurately reflect the exact location or surrounding buildings. Prospective buyers and interested parties are strongly advised to independently verify the precise location and surroundings before bidding.